สร้างบ้านหลังเล็กสไตล์ลอฟท์ 1 ห้องนอน 1 ห้องน้ำ ราคาประหยัด

          รีวิวสร้างบ้านสองชั้น 1 ห้องนอน 1 ห้องน้ำ ใครกำลังมองหาแบบบ้านขนาดเล็กราคาประหยัด มาชมรีวิวสร้างบ้าน บ้านสองชั้น 1 ห้องนอน 1 ห้องน้ำ แบบบ้านขนาดเล็กราคาประหยัดหลังนี้กันเลย

สร้างบ้านหลังเล็ก

          ถ้ากำลังมองหาไอเดียในการสร้างบ้านสองชั้น 1 ห้องนอน 1 ห้องน้ำ หรือบ้านขนาดเล็กราคาประหยัด คุณ มาม่ากับปลากระป๋อง สมาชิกเว็บไซต์พันทิปดอทคอม ได้นำประสบการณ์ในการสร้างบ้านสองชั้น 1 ห้องนอน 1 ห้องน้ำ ตกแต่งสไตล์ลอฟท์ของพี่ชายและพี่สาวมาให้ได้ชมกัน แม้พื้นที่ในการสร้างบ้านหลังนี้จะไม่ค่อยเอื้ออำนวย แต่ด้วยแรงกายและแรงใจของทุกคนที่มาร่วมกันสร้างก็ทำให้บ้านขนาดเล็กราคาประหยัดหลังนี้ออกมาสวยสมใจเจ้าของบ้านมากเลยทีเดียว

[รีวิว] บ้านสไตล์ลอฟท์ 1 ห้องนอน 1 ห้องน้ำ 1 ห้องครัวครัว 1 ห้องนั่งเล่น 1 บันไดเวียนและดาดฟ้า 
 
          วันนี้ผมจะมารีวิวบ้านหลังนี้ครับ บ้านพี่ชายผมเอง ผมจะเล่าที่มาที่ไปของบ้านหลังนี้ ขอเล่าด้วยภาพนะครับ เพื่อให้เป็นแนวทางและสามารถสร้างประโยชน์ให้ทุกท่านที่สนใจได้บ้าง (ตอนเดียวจบครับลงรวดเลย) พี่ชายและภรรยาของเขาตัดสินใจว่า มันถึงเวลาที่ต้องซื้อบ้านหรือสร้างบ้านเป็นของตนเองสักหลัง วนดูที่เปล่ากับดูหมู่บ้านจัดสรรก็ยังไม่ตอบโจทย์เท่าไร จึงตัดสินใจกลับบ้าน กลับไปสร้างบ้านในสวนบนที่ดินของตนเอง อยู่รวมกับญาติพี่-น้อง อยู่กันแบบครอบครัวใหญ่ ๆ (รวมถึงผมด้วย บ้านผมอยู่ห่างจากบ้านหลังนี้ประมาณ 30 เมตร ฮ่า ๆ) โจทย์ที่ได้คือบ้านขนาดเล็ก ราคาประหยัด แต่มีดีไซน์ทีโดดเด่น ตกแต่งสไตล์ลอฟท์ และเลือกจุดที่จะสร้างไว้ พอเลือกจุดได้ก็ทำการสำรวจครับ ความท้าทายของการออกแบบคือ ตรงจุดที่พี่ชายผมเลือกที่จะสร้างบ้านนั้น มันมีความต่างของระดับพื้นที่ วัดไปวัดมาห่างกันเมตรกว่า ๆ เลยทีเดียว บ้านมะนาว (ชื่อที่พี่ชายกับพี่สาวใช้ขนานนามบ้านหลังนี้ครับ)
 
สร้างบ้านหลังเล็ก
 
          - ผมกับสถาปนิกลงไปดูหน้างาน ทีมออกแบบปรับแก้กันไม่กี่ครั้งก็จบครบตามความต้องการของเจ้าของบ้าน
 
สร้างบ้านหลังเล็ก
 
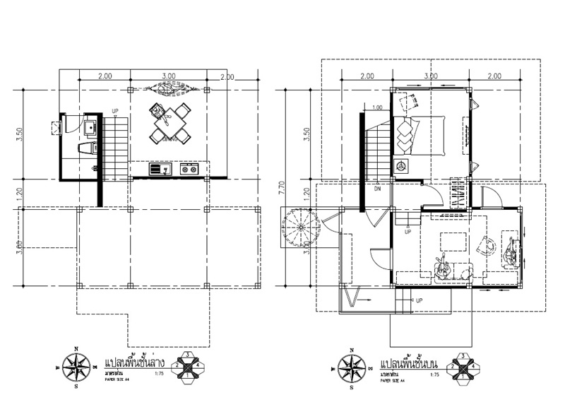
          - ผังบ้านมะนาว ต้นแบบงานดีไซน์แบบไม่เรนเดอร์ครับ 3 สเต็ป
 
สร้างบ้านหลังเล็ก
 
          - บ้านมะนาวตรงมุมหน้าบ้าน ห้องนอนเปิดรับวิวสูง ด้านล่างห้องครัวเป็นแบบโอเพ่นแอร์รับลมธรรมชาติ
 
สร้างบ้านหลังเล็ก

สร้างบ้านหลังเล็ก

สร้างบ้านหลังเล็ก

          - บ้านหลังนี้เข้าทางหลังบ้านครับ ทางเข้ายกพื้นนิดหน่อย และมีบันไดเวียนสามารถไปชิลบนดาดฟ้าได้
 
สร้างบ้านหลังเล็ก

สร้างบ้านหลังเล็ก

          - เมื่อแบบบ้านมาแล้ว ดูฤกษ์ และก็เริ่มกันเลยครับ ความมันส์ของบ้านหลังนี้คือ สร้างกลางป่าไผ่และรถเข้าไม่ถึง เลยทำให้ทุกอย่างต้องใช้แรงคนทั้งหมด ทั้งขุดดิน เคลียร์หน้างาน ผสมปูน และเทปูน (ตอนเทพื้นดาดฟ้าคอนกรีต วันนั้นเล่นซะคนงานป่วยไปเลยก็มี)
 
สร้างบ้านหลังเล็ก

          - ช่วยกันจัดการซากต้นลำไย ฮึบ ๆ (ผมก็ไปช่วยเขาด้วย ติดในภาพด้วยนะ)
 
สร้างบ้านหลังเล็ก
 
          - ใช้เป็นฐานแผ่ครับ ใช้เป็นเสาปูนแบบไม่ถอดแบบ เทกรอกใส่แบบไปเลยเพื่อเพิ่มความบึกบึนของบ้าน
 
สร้างบ้านหลังเล็ก
 
          - ขึ้นเสาชั้น 2 ครับ
 
สร้างบ้านหลังเล็ก
 
          - คานก็มา ตุ๊กตาก็ต้องมี ตั้งกันเข้าไป
 
สร้างบ้านหลังเล็ก
 
          - ฉาบเสร็จแล้วก็ขัดมัน
 
สร้างบ้านหลังเล็ก
 
          - มาสะดุดนิดนึงตรงบันไดเวียน เพราะให้ช่างเหล็กมาตีราคาก็แพงไป เลยทำเองกับช่างที่กำลังสร้างบ้านให้เรานี่แหละ ฮ่า ๆ เจ้าของบ้านมาเคลียร์แบบ ช่วยกันทำขั้นบันได บันไดใช้เป็นเหล็กเพลทครับ
 
แบบบ้านขนาดเล็กราคาประหยัด

          - เป็นรูปเป็นร่างแล้วครับ !
 
สร้างบ้านหลังเล็ก

          - ครัวดิบ ๆ ต่อไปลงภาพยาว ๆ เลยนะครับ
 
แบบบ้านขนาดเล็กราคาประหยัด

แบบบ้านขนาดเล็กราคาประหยัด

สร้างบ้านหลังเล็ก

สร้างบ้านหลังเล็ก

สร้างบ้านหลังเล็ก

สร้างบ้านหลังเล็ก

สร้างบ้านหลังเล็ก

          - บ้านหลังนี้เข้าอยู่อาศัยกันมาหลายเดือนแล้วครับ แต่บ้านก็ยังทำไม่จบ ฮ่า ๆ งานโครงสร้าง งานสถาปัตยกรรมหลัก ๆ เช่น ประตูกับหน้าต่างก็จบแล้ว เจ้าของบ้านบอกว่า “โอเค ที่เหลือต่อเอง” ฮ่า ๆ เจ้าของบ้านเป็นสาย DIY เองครับ เดินไฟเองทั้งหลัง ตอนนี้กำลังปูพื้นอิฐรอบบ้าน คงใช้เวลาอีกนานกว่าจะรอบ (เพราะแกทำได้วันอาทิตย์วันเดียวที่เหลือทำงาน ฮ่า ๆ) พูดง่าย ๆ คืออะไรทำเองได้ทำเองหมด แต่แกก็มีความสุขครับ แฮปปี้กับบ้านหลังใหม่ ถึงจะยังไม่จบสมบูรณ์แต่ก็พร้อมทุกการใช้งานตามที่หวัง ที่เหลือก็ทำพักไป ตามแต่โอกาสและเวลาที่มี

          อิฐ หิน ดิน ทราย เหล็ก ไม้ และปูน มันเป็นเพียง “รูปกาย” ของคำว่า "บ้าน" เท่านั้นครับ เพราะจริง ๆ แล้วคำว่า ”บ้าน” ยังมี “จิตวิญญาณ” ผสมอยู่ด้วย จิตวิญญาณของบ้านที่เจ้าของบ้านและคนในครอบครัวใส่เข้าไปด้วยใจ เพราะผมมองว่าสิ่งจริงแท้ที่ทำให้บ้านเป็นบ้านที่สมบูรณ์นั้นไม่ใช่สิ่งปลูกสร้างหรอกครับ แต่เป็นคนในครอบครัว รอยยิ้ม เสียงหัวเราะ ความทรงจำ และความผูกพันต่างหาก ที่ทำให้เราเรียกสิ่งปลูกสร้างนั้นว่า “บ้าน” ขอลาไปแล้วนะครับ ภาพมินิปาร์ตี้ประจำวันอาทิตย์ วาระปาร์ตี้ขนมปังและน้ำปั่น ! ขอบคุณครับ
 

ขอบคุณข้อมูลและภาพประกอบจาก คุณ มาม่ากับปลากระป๋อง สมาชิกเว็บไซต์พันทิปดอทคอม
เรื่องน่าสนใจอื่นๆ
เรื่องที่คุณอาจสนใจ
สร้างบ้านหลังเล็กสไตล์ลอฟท์ 1 ห้องนอน 1 ห้องน้ำ ราคาประหยัด อัปเดตล่าสุด 14 กุมภาพันธ์ 2565 เวลา 17:39:47 42,297 อ่าน
TOP
x close