หนุ่มไทยเผยประสบการณ์ ซื้อคอนโดในฮ่องกง ราคา 55 ล้านบาท แบบ 3 ห้องนอน แต่สุดท้ายพบว่า ทุกส่วนแคบไปหมด สมแล้วกับการที่ขึ้นชื่อว่า อสังหาริมทรัพย์แพงที่สุดในโลก
หากคุณมีเงิน 55 ล้านบาท แล้วต้องการสร้างบ้านสักหลังในเมืองไทย นอกจากคุณจะได้ที่ดินใจกลางเมืองสุดแสนจะศิวิไลซ์แล้ว อาจจะได้บ้านหลังใหญ่กว้างขวางดุจดั่งคฤหาสน์ แต่นั่นคงไม่ใช่ที่ฮ่องกง สถานที่ที่ขึ้นชื่อว่า ราคาอสังหาริมทรัพย์แพงที่สุดในโลก
โดยล่าสุด คุณ น้องตี๋จอมพลัง สมาชิกเว็บไซต์พันทิปดอทคอม ได้ออกมาเล่าเรื่องราวการซื้อคอนโดในฮ่องกง ขนาด 3 ห้องนอน 1 ห้องน้ำ แต่กลับพบว่า ห้องที่ได้มานั้นถูกกั้นจนเล็ก ทำเอาน้ำตาแทบไหล
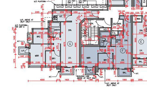
ทั้งนี้ คุณน้องตี๋จอมพลัง ได้ย้อนกลับไปเมื่อ 2 ปีก่อน ที่เขาได้ไปต่อคิวเพื่อซื้อคอนโดในย่านไขตั๊ก ฮ่องกง ซึ่งเป็นการพัฒนาสนามบินเก่าให้เป็นเมืองใหม่ มีรถไฟความเร็วสูงไปจีน มีโรงเรียนนานาชาติ มีศูนย์ราชการต่าง ๆ และมีคอนโดตึกสูง ที่ทั้งคอนโดมีแค่ 300 ห้อง โดยในวันที่เปิดขายนั้น มีคนเข้าจองหลายพันคน
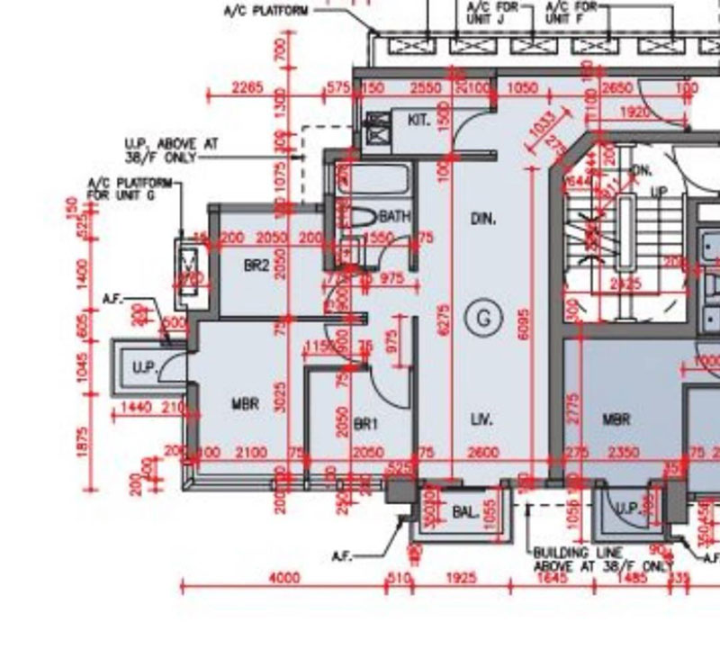
คุณน้องตี๋จอมพลัง ได้เป็นอีกคนที่ไปจอง โดยตอนแรกตั้งงบประมาณไว้ที่ 30-35 ล้านบาท และอยากได้แบบ 1 ห้องนอน หรือ 2 ห้องนอน โดยจะมีการจับสลากให้เข้าไปเลือกห้อง แต่คุณน้องตี๋จอมพลัง ต้องรอถึง 9 ชั่วโมงกว่าจะได้เข้าจอง โดยมีขนมปังและชาที่จะแจก แต่พอได้เข้าไปเลือกห้องแล้ว กลับพบว่าห้องสตูดิโอแบบ 1 หรือ 2 ห้องนอนถูกจองหมดแล้ว เหลือแต่แบบ 3 ห้องนอน ราคา 13.6 ล้านเหรียญฮ่องกง หรือประมาณ 55 ล้านบาท ขนาดประมาณ 58 ตารางเมตร ซึ่งตอนแรกคุณน้องตี๋จอมพลัง คิดว่าจะไม่เอา แต่เซลส์เป่าหู เลยเลือกเอาในที่สุด
อย่างไรก็ตาม หลังจากผ่านไป 2 ปี ตึกที่สร้างก็เสร็จ และมีการส่งกล่องอุปกรณ์สำหรับย้ายเข้าอยู่ให้ลูกบ้าน ทั้งคู่มือและแท็บเล็ตต่าง ๆ โดยพบว่า เมื่อเข้ามาในห้อง กลับพบว่าห้องแคบกว่าที่คิดเอาไว้ ห้องนั่งเล่นกว้างแค่ประมาณ 2.5x5 เมตร วางโต๊ะกินข้าวกับโซฟาสักตัวก็เต็มแล้ว หรือขนาดระเบียงก็แค่ประมาณ 1x1.5 เมตร เท่านั้น
![ซื้อคอนโดในฮ่องกง ซื้อคอนโดในฮ่องกง]()
ในขณะที่ห้องนอนหลัก (Master Bedroom)
ก็มีขนาดแค่ประมาณ 2.2x3เมตร ประมาณล็อกจอดรถในห้างดัง
แต่กลับใส่แอร์มาให้เต็มเหนี่ยวถึง 16,000 บีทียู
และระเบียงในห้องยังเล็กมาก หากไปยืน 2
คนต้องยืนซ้อนกันแบบแจ็คกับโรสในภาพยนตร์เรื่องไททานิค
นอกจากนี้ ห้องนอนเล็กทั้ง 2 ห้อง ยังเล็กแค่ประมาณ 2x2 เมตร
เมื่อวางรองเท้าเทียบกันจะเห็นได้ถึงความเล็ก ส่วนห้องน้ำก็ยังถือว่าใช้ได้
มีอ่างอาบน้ำ อ่างล้างหน้า และโถส้วมมาให้ แต่วางเรียงติดกันเลยทีเดียว
ส่วนในห้องครัวนั้น ให้เตามาแบบ 3 หัว และวางเครื่องซักผ้าไว้ด้านล่าง โดยมีเตาอบและตู้เย็นที่ทำซ่อนเอาไว้เป็นส่วนหนึ่งกับเฟอร์นิเจอร์ ทว่า หากเปิดตู้เย็นออกแล้ว จะไม่สามารถเปิดประตูครัวได้
ทั้งนี้ คุณน้องตี๋จอมพลัง เผยว่า ตนซื้อห้องนี้มาในราคา 55 ล้านบาทก็จริง
แต่ก็ผ่อนประมาณ 30 ปี และพอมาเห็นห้องจริงก็ถึงกับเข่าอ่อน
เพราะห้องตัวอย่างที่โครงการทำให้ดูนั้น ไม่มีกำแพงทุกด้าน
เลยทำให้ห้องดูกว้างกว่าความเป็นจริง
ด้านชาวเน็ตได้ร่วมแสดงความคิดเห็นในเรื่องนี้กันมากมาย โดยหลายคนได้พูดถึงราคาอสังหาริมทรัพย์ในฮ่องกงที่แพงหูฉี่ จนทำให้ที่แค่ 1 ตารางเมตร ราคาพุ่งสูงกว่า 1 ล้านบาท รวมถึงการวางผังห้องที่พยายามซอยห้องออกเป็นหลาย ๆ ห้อง ทั้งที่มีพื้นที่แค่ 58 ตร.ม. ห้องนั่งเล่นที่อึดอัดและไม่มีหน้าต่าง ห้องนอนที่เล็กจนแทบจะวางเตียงไม่ได้ หากทำเป็นแบบ 2 ห้องนอน 1 ห้องน้ำ น่าจะได้ผังที่ลงตัวมากกว่านี้
![ซื้อคอนโดในฮ่องกง ซื้อคอนโดในฮ่องกง]()
ภาพจาก น้องตี๋จอมพลัง
![ซื้อคอนโดในฮ่องกง ซื้อคอนโดในฮ่องกง]()
ภาพจาก น้องตี๋จอมพลัง
![ซื้อคอนโดในฮ่องกง ซื้อคอนโดในฮ่องกง]()
ภาพจาก น้องตี๋จอมพลัง
![ซื้อคอนโดในฮ่องกง ซื้อคอนโดในฮ่องกง]()
ภาพจาก น้องตี๋จอมพลัง
![ซื้อคอนโดในฮ่องกง ซื้อคอนโดในฮ่องกง]()
ภาพจาก น้องตี๋จอมพลัง
![ซื้อคอนโดในฮ่องกง ซื้อคอนโดในฮ่องกง]()
ภาพจาก น้องตี๋จอมพลัง
![ซื้อคอนโดในฮ่องกง ซื้อคอนโดในฮ่องกง]()
ภาพจาก น้องตี๋จอมพลัง
หากคุณมีเงิน 55 ล้านบาท แล้วต้องการสร้างบ้านสักหลังในเมืองไทย นอกจากคุณจะได้ที่ดินใจกลางเมืองสุดแสนจะศิวิไลซ์แล้ว อาจจะได้บ้านหลังใหญ่กว้างขวางดุจดั่งคฤหาสน์ แต่นั่นคงไม่ใช่ที่ฮ่องกง สถานที่ที่ขึ้นชื่อว่า ราคาอสังหาริมทรัพย์แพงที่สุดในโลก
โดยล่าสุด คุณ น้องตี๋จอมพลัง สมาชิกเว็บไซต์พันทิปดอทคอม ได้ออกมาเล่าเรื่องราวการซื้อคอนโดในฮ่องกง ขนาด 3 ห้องนอน 1 ห้องน้ำ แต่กลับพบว่า ห้องที่ได้มานั้นถูกกั้นจนเล็ก ทำเอาน้ำตาแทบไหล
ทั้งนี้ คุณน้องตี๋จอมพลัง ได้ย้อนกลับไปเมื่อ 2 ปีก่อน ที่เขาได้ไปต่อคิวเพื่อซื้อคอนโดในย่านไขตั๊ก ฮ่องกง ซึ่งเป็นการพัฒนาสนามบินเก่าให้เป็นเมืองใหม่ มีรถไฟความเร็วสูงไปจีน มีโรงเรียนนานาชาติ มีศูนย์ราชการต่าง ๆ และมีคอนโดตึกสูง ที่ทั้งคอนโดมีแค่ 300 ห้อง โดยในวันที่เปิดขายนั้น มีคนเข้าจองหลายพันคน
คุณน้องตี๋จอมพลัง ได้เป็นอีกคนที่ไปจอง โดยตอนแรกตั้งงบประมาณไว้ที่ 30-35 ล้านบาท และอยากได้แบบ 1 ห้องนอน หรือ 2 ห้องนอน โดยจะมีการจับสลากให้เข้าไปเลือกห้อง แต่คุณน้องตี๋จอมพลัง ต้องรอถึง 9 ชั่วโมงกว่าจะได้เข้าจอง โดยมีขนมปังและชาที่จะแจก แต่พอได้เข้าไปเลือกห้องแล้ว กลับพบว่าห้องสตูดิโอแบบ 1 หรือ 2 ห้องนอนถูกจองหมดแล้ว เหลือแต่แบบ 3 ห้องนอน ราคา 13.6 ล้านเหรียญฮ่องกง หรือประมาณ 55 ล้านบาท ขนาดประมาณ 58 ตารางเมตร ซึ่งตอนแรกคุณน้องตี๋จอมพลัง คิดว่าจะไม่เอา แต่เซลส์เป่าหู เลยเลือกเอาในที่สุด
อย่างไรก็ตาม หลังจากผ่านไป 2 ปี ตึกที่สร้างก็เสร็จ และมีการส่งกล่องอุปกรณ์สำหรับย้ายเข้าอยู่ให้ลูกบ้าน ทั้งคู่มือและแท็บเล็ตต่าง ๆ โดยพบว่า เมื่อเข้ามาในห้อง กลับพบว่าห้องแคบกว่าที่คิดเอาไว้ ห้องนั่งเล่นกว้างแค่ประมาณ 2.5x5 เมตร วางโต๊ะกินข้าวกับโซฟาสักตัวก็เต็มแล้ว หรือขนาดระเบียงก็แค่ประมาณ 1x1.5 เมตร เท่านั้น

ภาพจาก น้องตี๋จอมพลัง
ภาพจาก น้องตี๋จอมพลัง
ส่วนในห้องครัวนั้น ให้เตามาแบบ 3 หัว และวางเครื่องซักผ้าไว้ด้านล่าง โดยมีเตาอบและตู้เย็นที่ทำซ่อนเอาไว้เป็นส่วนหนึ่งกับเฟอร์นิเจอร์ ทว่า หากเปิดตู้เย็นออกแล้ว จะไม่สามารถเปิดประตูครัวได้
ด้านชาวเน็ตได้ร่วมแสดงความคิดเห็นในเรื่องนี้กันมากมาย โดยหลายคนได้พูดถึงราคาอสังหาริมทรัพย์ในฮ่องกงที่แพงหูฉี่ จนทำให้ที่แค่ 1 ตารางเมตร ราคาพุ่งสูงกว่า 1 ล้านบาท รวมถึงการวางผังห้องที่พยายามซอยห้องออกเป็นหลาย ๆ ห้อง ทั้งที่มีพื้นที่แค่ 58 ตร.ม. ห้องนั่งเล่นที่อึดอัดและไม่มีหน้าต่าง ห้องนอนที่เล็กจนแทบจะวางเตียงไม่ได้ หากทำเป็นแบบ 2 ห้องนอน 1 ห้องน้ำ น่าจะได้ผังที่ลงตัวมากกว่านี้

ภาพจาก น้องตี๋จอมพลัง

ภาพจาก น้องตี๋จอมพลัง

ภาพจาก น้องตี๋จอมพลัง

ภาพจาก น้องตี๋จอมพลัง

ภาพจาก น้องตี๋จอมพลัง

ภาพจาก น้องตี๋จอมพลัง

ภาพจาก น้องตี๋จอมพลัง


















