หลายคนกำลังมองหาแปลนบ้านเพื่อนำไปสร้างบ้านบนพื้นที่ของตัวเอง และหลายคนในนั้นคงมีบ้านชั้นเดียวเป็นเป้าหมายในใจ เนื่องจากแบบบ้านชั้นเดียวเป็นบ้านที่ก่อสร้างได้ง่ายไม่ซับซ้อน อีกทั้งยังสามารถปลูกสร้างได้ในราคาประหยัดอีกด้วย ข้อดีของการปลูกสร้างบ้านชั้นเดียวก็คือ สมาชิกในบ้านสามารถใกล้ชิดและมีกิจกรรมร่วมกันได้มากขึ้น ต่างจากแบบบ้านสองชั้นที่ส่วนใหญ่แล้วมักแยกห้องกันทำกิจกรรมเนื่องจากอยู่คนละชั้นของบ้านกันนั่นเอง
เมื่อหลายคนกำลังมองหาแบบบ้านชั้นเดียวที่ถูกใจอยู่ กระปุกดอทคอมก็พลาดไม่ได้ที่จะรวบรวมแบบบ้านชั้นเดียวมานำเสนอให้คุณได้เก็บไว้เป็นทางเลือกในการสร้างบ้านหลังน้อยของคุณกันค่ะ ถ้าอยากเห็นแบบบ้านชั้นเดียวที่เรานำมาฝากกันแล้วล่ะก็ ต้องรีบไปดูกันเลยจ้า ..









แบบบ้านสวย ตกแต่งบ้าน สินเชื่อบ้าน ฮวงจุ้ยบ้าน สวนสวยๆ คลิกเลย
คลิกอ่านความคิดเห็นของเพื่อน ๆ ได้ที่นี่
แบบบ้านชั้นเดียว จาก สำนักพัฒนาที่อยู่อาศัย

แบบบ้านชั้นเดียว จาก สำนักพัฒนาที่อยู่อาศัย
แบบบ้านชั้นเดียว จาก สำนักพัฒนาที่อยู่อาศัย

แบบบ้านชั้นเดียว จาก สำนักพัฒนาที่อยู่อาศัย

แบบบ้านชั้นเดียว จาก สำนักพัฒนาที่อยู่อาศัย

แบบบ้านชั้นเดียว จาก สำนักพัฒนาที่อยู่อาศัย

แบบบ้านชั้นเดียว จาก กรมโยธาธิการและผังเมือง
คลิกเพื่อดาวน์โหลดรายละเอียด แบบบ้านประหยัด 1

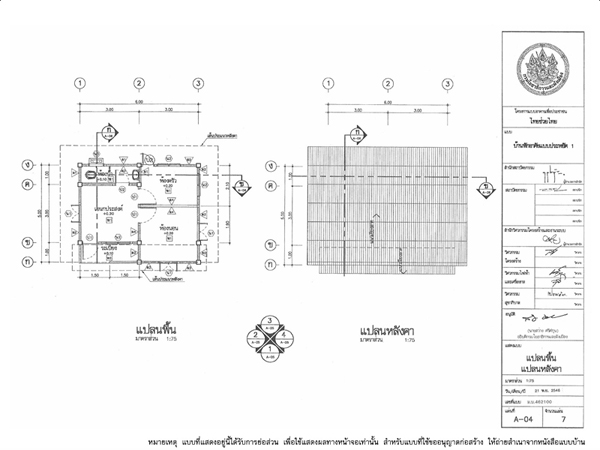
แบบบ้านชั้นเดียว จาก กรมโยธาธิการและผังเมือง
คลิกเพื่อดาวน์โหลดรายละเอียด แบบบ้านครอบครัวไทยเป็นสุข 1

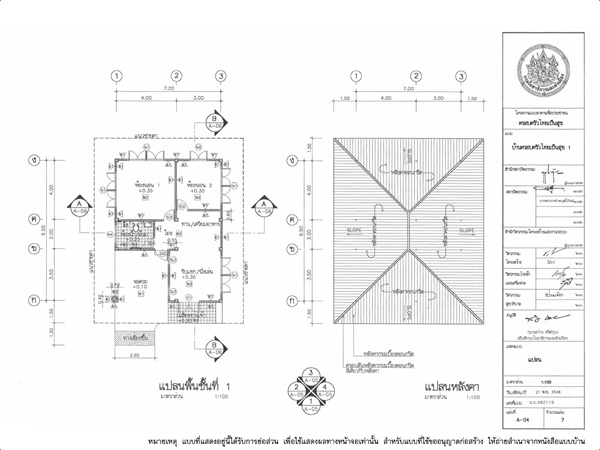
แบบบ้านชั้นเดียว จาก กรมโยธาธิการและผังเมือง
คลิกเพื่อดาวน์โหลดรายละเอียด แบบบ้านครอบครัวไทยเป็นสุข 2

แบบบ้านชั้นเดียวยกสูง จาก กรมโยธาธิการและผังเมือง
คลิกเพื่อดาวน์โหลดรายละเอียด แบบบ้านประหยัด 2

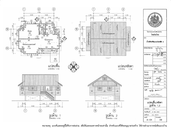
แบบบ้านชั้นเดียวยกสูง จาก กรมโยธาธิการและผังเมือง
คลิกเพื่อดาวน์โหลดรายละเอียด แบบบ้านผู้ประสบภัย 1







