
แบบบ้าน 2 ชั้น บรรยากาศเหมือนรีสอร์ทบนเนินเขา
เรียบเรียงข้อมูลโดยกระปุกดอทคอม
ขอขอบคุณข้อมูลและภาพประกอบจาก A Parallel Architecture
แบบบ้าน 2 ชั้นสวย ๆ ล้อมรอบด้วยบรรยากาศดี ๆ ที่ดูคล้ายกับรีสอร์ทบนเนินเขา ลองไปชมแบบบ้านสองชั้นหลังนี้แล้วเก็บไอเดียไปพร้อม ๆ กันเลยค่ะ
จริง ๆ แล้ววิวทิวทัศน์ในบ้านเราก็สวยไม่แพ้เมืองนอกเมืองนาเลย แต่น่าเสียดายที่บ้านหลาย ๆ หลังกลับเลือกใช้ผนังทึบแทนที่จะเป็นกระจก ทำให้อดเห็นความสวยงามของธรรมชาติไปโดยปริยาย ทั้งยังทำให้บรรยากาศภายในมืดทึมอีกต่างหาก ดังนั้น แบบบ้าน 2 ชั้น ที่ออกแบบโดย A Parallel Architecture น่าจะเป็นแบบบ้านที่ช่วยให้หลายคนกล้าสร้างสรรค์บ้านที่แตกต่างออกไปมากขึ้น
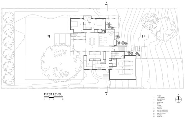
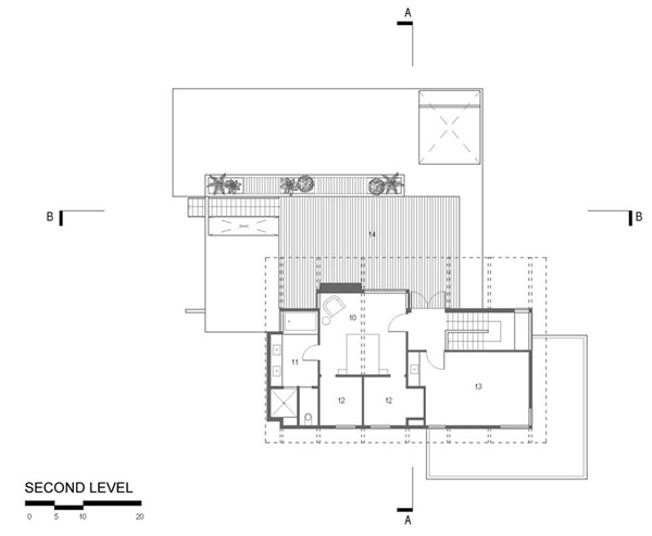
ข้อดีอย่างหนึ่งของบ้านหลังนี้คือ มีที่ตั้งอยู่บนภูเขาทำให้สามารถมองเห็นวิวทิวทัศน์ได้ไกลกว่าบ้านหลังอื่น ๆ บนเนื้อที่ประมาณ 250 ตารางเมตร โดยเฉพาะเมื่อยืนอยู่เหนือระเบียงของห้องนอน นอกจากนี้ บ้าน 2 ชั้น ที่ถูกสร้างขึ้นใหม่หลังนี้ยังเป็นที่พักสไตล์คอนเทมโพรารี ซึ่งเป็นทั้งที่พักอาศัย แหล่งสร้างความเพลิดเพลิน ในขณะเดียวกันก็มีพื้นที่ส่วนตัวซ่อนอยู่หลังประตู ไม้ คอนกรีต เหล็ก และกระจก เป็นวัสดุ 4 ชนิดที่ช่วยให้ตัวบ้านภายใน-ภายนอก รวมถึงธรรมชาติรอบ ๆ บ้านมีความสมดุลกันเป็นอย่างดี
ซึ่งทางผู้ออกแบบได้ให้คำนิยามเกี่ยวกับบ้านหลังนี้เอาไว้ว่า เป็นสถานที่มหัศจรรย์สำหรับการพักผ่อนอย่างยิ่ง โดยนอกจากจะมีชีวิตที่มีความสุขและสะดวกสบายแล้ว ยังส่งผลดีต่อสุขภาพด้วย ไม่ว่าจะเป็นมุมนั่งเล่นกลางแจ้งที่เปิดให้เห็นความสวยงามของวิวทิวทัศน์ทั้ง 4 ด้าน ผนังกระจกที่ช่วยให้ภายในบ้านสว่าง และหากมองจากด้านในก็ยังมองเห็นพื้นที่สีเขียวที่จะช่วยให้ผู้อยู่อาศัยรู้สึกสดชื่นขึ้น





















