
บ้านเดี่ยว 2 ชั้น 3 ห้องนอน 3 ห้องน้ำ รีวิวสร้างบ้านเดี่ยวราคาไม่เกิน 2 ล้าน อยากมีบ้านเดี่ยวสวย ๆ ไว้อยู่กับครอบครัว มาดูรีวิวสร้างบ้านเดี่ยวหลังนี้กันเลย
บ้านเดี่ยว แบบบ้านที่ใครหลายคนอยากได้ เพราะอยากมีพื้นที่บริเวณบ้านไว้เดินเล่น คุณ Luv-Lali-Jung สมาชิกเว็บไซต์พันทิปดอทคอม เลยอยากจะนำประสบการณ์การสร้างบ้านเดี่ยวมาแบ่งปัน ให้กับคนที่อยากมีบ้านเดี่ยวในราคาหลักล้านต้น ๆ ตามประสาคนสร้างบ้านหลังแรกเหมือนกัน ตามไปดูกันเลยว่าเขาสร้างบ้านเดี่ยว 2 ชั้น 3 ห้องนอน 3 ห้องน้ำ ด้วยงบไม่เกิน 2 ล้านได้อย่างไร ?
สวัสดีครับ ผมมีโอกาสได้สร้างบ้านหลังแรกในชีวิต ตั้งใจจะมาแบ่งปันประสบการณ์ในการสร้างบ้านหลังแรกของผม ซึ่งพยายามรวบรวมข้อมูลให้ได้มากที่สุดตั้งแต่การสร้างจนถึงวันส่งมอบงาน หวังว่าคงจะเป็นประโยชน์กับผู้ที่เข้ามาเยี่ยมชมบ้างไม่มากก็น้อยนะครับ หากเนื้อความในกระทู้ของผมมีข้อบกพร่องหรือผิดพลาดประการใด ก็ขออภัยไว้ล่วงหน้านะครับ
เริ่มจากมีที่ดินที่เคยซื้อไว้อยู่ราว ๆ 150 ตารางวาและมีเหตุจำเป็นให้ต้องย้ายที่อยู่ จึงตั้งใจว่าจะสร้างบ้านบนพื้นที่แห่งนี้ ประมาณงบการสร้างไว้อยู่ที่ 1.2-1.3 ล้านบาท ซึ่งผมและครอบครัว (พ่อ แม่ และน้อง) ไม่ได้มีความรู้เรื่องงานรับเหมาหรือการก่อสร้างมาก่อนเลย จึงต้องทำการบ้านค่อนข้างหนักครับ
โดยเริ่มจากหาข้อมูล หาแบบบ้าน หาแปลนบ้านสวย ๆ หลังจากนั้นก็เริ่มมองหาและคุยกับผู้รับเหมาครับ ค่อนข้างหนักใจกับเรื่องนี้ครับ จะไปจ้างบริษัทดัง ๆ ก็ไม่ไหวเพราะราคาค่อนข้างสูง ตั้งใจว่าจะหาผู้รับเหมาที่ออกแนวบ้าน ๆ ลูกทุ่ง ๆ หน่อย (แบบว่าคุยกันง่าย ๆ ไม่ต้องเป็นระดับบริษัทที่มีระบบอะไรมากมาย) เพื่อนแม่ก็แนะนำผู้รับเหมาเจ้าหนึ่งมา ซึ่งเป็นผู้รับเหมาที่สร้างบ้านให้เพื่อนแม่ที่อยู่ไม่ไกลกับที่ดินที่ผมจะลงมือสร้างบ้านหลังนี้มากนัก ปรึกษากันในครอบครัวก็ตกลงกันว่าจะเลือกผู้รับเหมาเจ้านี้แหละ (เพราะไม่น่าจะทิ้งงาน)
แรกเริ่มก็มีความลังเลว่าจะสร้างบ้านชั้นเดียวหรือสองชั้น มีกี่ห้องยังไงดี เพราะลังเลในเรื่องของพื้นที่และงบประมาณ มีการถกกันเรื่องความต้องการต่าง ๆ ระหว่าง ผม พ่อ และแม่ จนได้แบบบ้านที่พอใจ สุดท้ายค่อนข้างบานปลายในส่วนของขนาดบ้านและงบประมาณครับ เพราะความต้องการบางอย่างไม่ค่อยลงตัวกัน อย่างเช่น แม่ต้องการห้องน้ำที่มีประตูเข้า-ออกได้ 2 ทาง ในขณะที่ผมไม่ชอบห้องน้ำแบบนั้น เป็นต้น
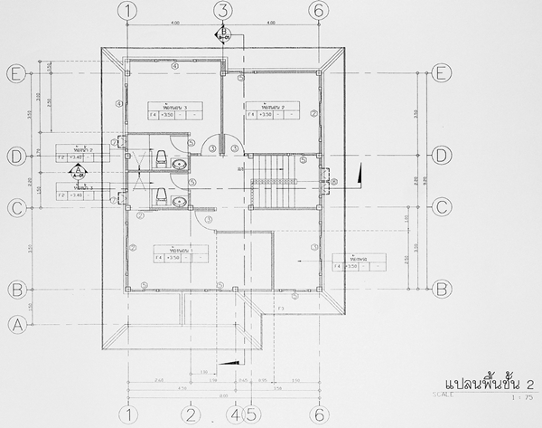
เมื่อตกลงกันได้สุดท้ายไปลงเอยกันที่บ้าน 2 ชั้น 3 ห้องนอน 3 ห้องน้ำ พื้นที่ใช้สอยรวม 156 ตารางเมตร บนงบประมาณ 1.5 ล้านบาท ในส่วนของแบบบ้าน แปลนบ้าน และงบประมาณ ก็เริ่มส่งให้ผู้รับเหมาถอดราคาออกมาเป็น BOQ ครับ ซึ่ง BOQ ที่ลงนี้เป็นชุดแรกที่ทางผู้รับเหมาถอดออกมารอบแรกที่ราคา 1.6 ล้านกว่า สุดท้ายต่อรองกับทางผู้รับเหมาลดสเปคบางอย่าง และทางผู้รับเหมาก็ถอดออกมาได้เหลือ 1.5 ล้านกว่า ๆ ครับ (แต่ใบหลังผมละเลงจนเละไปแล้ว จึงขอนำใบแรกมาให้ดูแทนนะครับ)






- เมื่อตกลงเซ็นสัญญามัดจำกันได้แล้วก็เริ่มงานอย่างไม่มีรีรอครับ เพราะดูแล้วฤกษ์ลงเสาเอกใกล้เข้ามาแล้วครับ โดยเริ่มลงมือตีผังและขุดหลุมสำหรับลงเสาในวันที่ 25 ธันวาคม 2558 ครับ ซึ่งทางช่างที่ขุดดินบอกว่าดินแข็งมาก ทำเอารถขุดเขี้ยวหักไปหลายอันเลย ผู้รับเหมาบอกว่าดินแข็งจะเป็นผลดีต่อบ้านครับ














- จากนั้นก็มาในส่วนของตอม่อและวางไม้แบบเตรียมเทคานครับ




- ในส่วนของการเทคาน คุณพ่อท่านกลัวเรื่องช่องว่างฟองอากาศมาก ๆ จึงไปช่วยช่างลงมือกระทุ้ง ตบ ๆ ทุบ ๆ ด้วยตัวเอง เห็นท่านว่าได้แผลมาบ้างเล็ก ๆ น้อย ๆ เหมือนกันในวันที่เทผมไม่ได้ไป ดังนั้นทั้งการควบคุมงานช่าง รวมถึงการถ่ายภาพเป็นของคุณพ่อทั้งหมดครับ





- ช่วงปลายเดือนมกราคม 2559 เป็นขั้นตอนการเทพื้นชั้นล่าง ผมไม่อยู่ จึงไม่ได้ไปดูงาน เลยฝากกล้องคุณพ่อไปถ่าย แต่ลืมปรับโหมดกล้องไว้ ทำให้คุณพ่อถ่ายไม่เป็น ภาพออกมาเบลอหมดเลย น่าเสียดายมากครับ เลยไม่มีรูปในช่วงเทพื้นชั้นล่างครับก็ใช้เป็นพื้นสำเร็จครับ ยกเว้นเฉพาะห้องน้ำครับ





- ผ่านไปถึงช่วงต้นเดือนกุมภาพันธ์ 2559 ก็เตรียมขึ้นไม้แบบเพื่อเทคานชั้น 2 ครับ เมื่อเริ่มเทคานชั้น 2 ครับ โดยใช้รถยกขึ้นไปเททีละถัง ๆ นับถือคนบังคับรถจริง ๆ เพราะต้องประคองไม่ให้ถังหก แถมต้องคอยหลบสายไฟฟ้าด้วย เสียวแทนครับ ส่วนปูนที่เหลือก็นำมาเทเฉลียงหน้าบ้านบางส่วนและเทเสาชั้น 2 ต่อเลย หลังจากนั้นก็ไม่ได้เข้าไปดูหน้างานหลายวันเลยราว ๆ 2 สัปดาห์เลยครับ
![บ้านเดี่ยว บ้านเดี่ยว]()







- กว่าจะได้โผล่กลับไปดูหน้างานอีกครั้ง ชั้นล่างก็ก่อเกือบจะเสร็จแล้วครับ จากนั้นก็เตรียมขึ้นโครงหลังคาและต่อด้วยมุงหลังคา โดยใช้แผ่นกระเบื้องหลังคาซีแพคสีเขียวไพรพฤกษ์และติดแผ่นสะท้อนความร้อนไว้ใต้หลังคาครับ



- เมื่อก่อเสร็จแล้ว มุงหลังคาเสร็จแล้ว ก็เตรียมกรีดท่อสายไฟ จากนั้นก็จะฉาบปูนครับ ช่วงนี้ก็เริ่มไล่หาและเล็ง ๆ พวกประตู วงกบ ลูกบิด ปลั๊กไฟ สวิตช์ กระเบื้อง และสุขภัณฑ์ต่าง ๆ ตามร้านก่อสร้างแล้วครับ เพราะตกลงกับผู้รับเหมาไว้ว่าในส่วนของสเปคโครงสร้างก็ยกให้ผู้รับเหมา เราก็เอาตามว่ากันไป แต่ในส่วนของอุปกรณ์บางอย่างภายในบ้าน ก็เลือกซื้อเองขาดเกินอย่างไรก็ไปหักตัดราคากันตามใน BOQ กันไปครับ
- เพราะเป็นบ้านที่สร้างอยู่เองต้องการเลือกเองเท่าที่จะเลือกได้ครับ โดยเฉพาะในส่วนที่เราต้องใช้ประจำครับ เราจะต้องอยู่กับมันไปจนเบื่อกันไปข้างหนึ่ง ดังนั้นก็คิดว่าเราควรมีโอกาสเลือกในสิ่งที่เราต้องการได้เอง ถ้าเป็นไปได้ครับ เรียกว่าเป็นช่วงที่ไปร้านวัสดุก่อสร้างจนเบื่อ จนพนักงานจำได้เลยทีเดียว ไปแทบทุกร้าน ทุกสาขา บางสาขาไปถี่หลาย ๆ รอบ
- ผมว่าเป็นช่วงที่เหนื่อยแต่ก็สนุกดีเหมือนกันนะครับ อารมณ์คล้าย ๆ สร้างบ้านในเกม เดอะซิมส์ (The sims) เลยครับ ก็ต่างคนต่างเลือกครับไม่ว่าจะเป็น สี กระเบื้อง ประตู บ้านเลยอาจจะออกมาในสไตล์มิกซ์แอนด์ไม่ค่อยจะแมตช์กันสักเท่าไหร่ครับ




- ช่วงฉาบใกล้เสร็จก็ดูเรื่องสีตัวบ้านภายนอก โดยผมลองออกแบบและหยอดสีเอง ด้วยโปรแกรมของบริษัทจำหน่ายสีครับ สรุปความเห็นของผม พ่อ และแม่ ไม่ตรงกันเลย ผมเลยตัดบทไปว่า งั้นสรุปง่าย ๆ เอาของผมละกัน จบ (แอบเผด็จการ ฮ่า ๆ ๆ)










- โดยในระหว่างนั้นช่างอีกส่วนหนึ่งก็เริ่มลงมือทำรั้วบ้านไปครับ ช่างฝ้าก็เข้ามาตีโครงฝ้าและช่างสีก็เข้ามาทาสีรองพื้นภายในบ้านไปด้วยครับ



- จากเดือนมีนาคม ดูยังไม่เป็นรูปเป็นร่างเท่าใดนัก ซึ่งทางผม พ่อ และแม่ก็เกรงเรื่องบ้านจะเสร็จไม่ทันกำหนด แต่ในช่วงกลาง ๆ เดือนเมษายน 2559 ก็ถือว่าบ้านเริ่มเป็นรูปเป็นร่างค่อนข้างชัดเจนแล้ว ถือว่าเป็นช่วงเวลา 1 เดือน ที่งานดำเนินไปได้ถือว่าค่อนข้างไวมาก เริ่มจับเฟี้ยมและใส่วงกบอะลูมิเนียมของหน้าต่าง ช่วงนี้สุขภัณฑ์ต่าง ๆ รวมทั้งกระเบื้องปูพื้นที่เลือก ๆ สั่งไว้ ก็ทยอยส่งเข้ามาจากร้านวัสดุก่อสร้างแล้ว เพราะส่วนใหญ่ทางร้านจะรับฝากได้ 1 เดือน ทางผมก็ไปเจรจาผลัดวันแล้วผลัดวันอีก จนรู้สึกว่าโอเคของจะเข้าก็ให้เข้าแล้ว เอาไปวาง ๆ ไว้ จะได้เป็นการแอบกดดันผู้รับเหมาไปในตัว ซึ่งผู้รับเหมาแจ้งว่ายังไม่ได้ติดตั้ง จึงต้องเสี่ยงกอง ๆ ไว้บริเวณก่อสร้าง กลัวว่าจะหายเหมือนกัน แต่โชคดีที่บริเวณนั้นไม่ค่อยมีปัญหาเรื่องโจรกรรมมากนักครับ



- จากนั้นก็จะเริ่มปูกระเบื้องผนังครัวครับ ช่วงนี้ก็ประมาณสิ้นเดือนเมษายนแล้วครับ ส่วนช่างปูนก็เทพื้นออกไปทำเป็นทางเดินให้กว้าง 1 เมตรรอบตัวบ้าน เก็บงานเรื่องสีบริเวณช่องลมหน้าจั่วบ้านและเป็นช่วงที่ช่างไฟจะเข้ามาร้อยสายไฟ เพราะทีมช่างฝ้าเตรียมจะเข้ามาทำฝ้าช่วงต้นเดือนพฤษภาคมครับ เป็นช่วงที่ร้อนมาก ๆ ชนิดว่าไม่ไหวจริง ๆ จึงได้ตัดสินใจในช่วงสุดท้ายก่อนตีฝ้าว่า จะใส่ฉนวนใยแก้วกันความร้อนบริเวณเหนือฝ้าครับ เป็นงานเพิ่มเติมซึ่งไม่มีอยู่ใน BOQ ครับ



- ส่วนช่างไฟก็เข้ามาร้อยสายไฟ สายสัญญาณทีวี สายแลน (เปลี่ยนจากสายโทรศัพท์ทุกจุดภายในบ้านเป็นแลนทั้งหมด เพราะคิดว่าไม่น่าจะได้ใช้โทรศัพท์บ้านแล้วครับ) ตรงนี้มีปัญหาติดขัดพอสมควร เพราะเป็นช่างไฟคนละทีมกับที่มาเจาะผนังครับ ไม่แน่ใจว่าทำไมทางผู้รับเหมาถึงเปลี่ยนทีมช่างและทางช่างไฟชุดแรกก็เจาะผนังผิดตามแปลนไปค่อนข้างหลายจุดครับ ทีมช่างไฟชุดหลังเลยต้องมาแก้งานกันพอสมควรครับ
- กระเบื้องผนังห้องครัวก็ถือว่าเพิ่มงบจาก BOQ ไปพอสมควรครับ ทั้งในเรื่องของราคากระเบื้องและปริมาณพื้นที่ที่จะปูกระเบื้อง เพราะทางผู้รับเหมาปูให้ด้านเดียว ส่วนคุณแม่ต้องการปูผนังอีกด้านด้วยและมีกระเบื้องโมเสกรวมทั้งลายดอกไม้เพิ่มขึ้นมา ซึ่งราคาจะสูงกว่าที่ผู้รับเหมาได้กำหนดไว้ให้ใน BOQ พอสมควรครับก็ต้องเจียดเงินเพิ่มบานปลายตามกันไปครับ
- คุณแม่ชอบสีเขียวและอยากจะปูเป็นสีเขียวทั้งหมด ส่วนผมเสนอสีขาวไปก็เลยตกลงแบ่ง ๆ พื้นที่กันไป ของคุณแม่ปูด้านหนึ่งและของผมปูอีกด้านหนึ่ง ซึ่งมีทั้งเขียวทั้งขาว เอาดอกไม้มาตัดเส้นตรงกลางสักหน่อย สภาพออกมาก็พอไปวัดไปวาอยู่ครับ








- กระเบื้องส่วนที่ขาดไปอาจจะด้วยการคำนวณพื้นที่ผิดพลาดหรือเพราะต้องตัดกระเบื้อง ก็สั่งเพิ่มและทยอยเข้ามาส่งเรื่อย ๆ ครับ เป็นช่วงที่มึนงงเหมือนกัน เพราะกระเบื้องแต่ละแบบแต่ละลายซื้อมาจากหลาย ๆ ร้าน ต่างร้านต่างสาขากันครับ พอต้องซื้อเพิ่มก็มีมึน ๆ งง ๆ บ้าง ว่าต้องไปสั่งเพิ่มจากที่ร้านไหนหรือสาขาใดครับ ชั้นบนทั้งหมดใช้เวลาปูประมาณ 3-4 วันครับ แอบช้านิด ๆ เพราะช่างปูกระเบื้องคู่สามีภรรยาปูกันเองอยู่ 2 คน (เรียกได้ว่าทั้งบ้านของผมปูแค่ 2 คนนี้แหละครับ) แต่ฝีมือถือว่าโอเค งานเนี้ยบใช้ได้ครับ ลองเคาะแล้วแน่นดี มีเสียงโหลงเหลงบ้างนิดหน่อยประมาณ 2-3 แผ่น ถือว่าให้ผ่านไปครับ




- ปูกระเบื้องชั้นบนเสร็จแล้วก็ลงมือปูชั้นล่างต่ออีกประมาณ 3-4 วันครับ รวมทั้งก่อเคาน์เตอร์ห้องครัว ส่วนชั้นบนก็ทยอยใส่สุขภัณฑ์ต่าง ๆ เข้าไปครับ รวมทั้งช่างอะลูมิเนียมก็มาทยอยใส่กระจกหน้าต่างรอบบ้านครับ ช่างปูนก็ฉาบเรียบบันได ช่างสีก็เข้ามาจัดการเรื่องสี เรียกว่าเป็นช่วงที่ช่างเข้าแทบทุกทีมช่าง เดินชนกันไปหมดครับ ฮ่า ๆ ๆ





- หลังจากการปูกระเบื้องแล้วเสร็จ ก็เริ่มติดตั้งไฟ ราวบันได และประตูครับ แต่เรื่องประตูจะมีปัญหาอย่างหนึ่ง ด้วยผมไม่ทราบจริง ๆ เห็นลูกบิดสวย ๆ ลดราคาบ้างเลยกะว่าจะซื้อทิ้งไว้ จึงไปซื้อก้านมือจับเปิดประตูระบบ Mortise lock มาไว้ก่อน สำหรับห้องนอนและลูกบิดห้องน้ำต่าง ๆ ตัวลูกบิดไม่มีปัญหาครับ




- ติดตั้งวงกบไปก่อน แต่ไม่ได้มีใครเอะใจอะไรเพราะคิดว่าสั่งมาด้วยกันไม่น่าจะมีปัญหา จนช่างทำประตูมาบอกว่า วงกบเล็กกว่าประตู (วงกบ 160 เซนติเมตร แต่ประตูคู่บานละ 90 เซนติเมตร รวม 180 เซนติเมตรครับ) ทำให้ใส่ไม่ได้ คุณแม่โทรไปต่อว่าร้านชุดใหญ่แต่ก็แก้ไขอะไรไม่ได้แล้ว สุดท้ายจำต้องแก้ไขเฉพาะหน้า โดยไปซื้อประตูบานคู่มาภายในวันนั้นเลย ก็คุณแม่เป็นคนเลือกอีกเช่นเดิมครับ (ไม่ค่อยเข้ากันอยู่ดี แต่ผมแอบว่าดีกว่าหงส์มังกร 555)



- ผมก็ได้กำหนดจุดสวิตช์ต่าง ๆ โดยเขียนเป็นหมายเลขลงบนบรรจุภัณฑ์ของอุปกรณ์ และเขียนเลขระบุดังกล่าวลงไปบนแปลนไฟฟ้าว่าเลขไหนติดตั้งตรงจุดใด ส่งแปลนให้ทีมช่างไฟทำให้ทำงานง่าย แบ่งเบาภาระของช่างไฟครับ ไม่ต้องมานั่งคัดแยกสวิตช์ ถึงเวลาจับใส่ ๆ ครับ น่าจะสะดวกดี ซึ่งหนึ่งทีมช่างไฟยังชมว่าไอเดียดีด้วยครับ อิอิ พอติดตั้งระบบไฟเสร็จวันนั้นก็อยู่ลองดูไฟในช่วงค่ำเลยครับ












ก็ขอจบการรีวิวการสร้างบ้านอันยาวนาน 5 เดือนของผมไว้แต่เพียงเท่านี้ ขอบคุณทุกท่านที่แวะเข้ามาชมครับผม
ขอขอบคุณข้อมูลและภาพประกอบจาก คุณ Luv-Lali-Jung สมาชิกเว็บไซต์พันทิปดอทคอม





