แบบบ้านฟรี แบบบ้านชั้นเดียว งบประมาณค่าก่อสร้างเริ่มต้น 4 แสนบาท ชมแบบบ้านชั้นเดียวพร้อมแปลนฟรี หลากหลายสไตล์ ทั้งบ้านสไตล์ทรอปิคอล รีสอร์ต โมเดิร์น และคอนเทมโพรารี

แบบบ้านชั้นเดียว 1 ห้องนอน 1 ห้องน้ำ
1. แบบบ้าน TR-H1-04901.10
แบบบ้านชั้นเดียว สไตล์ทรอปิคอล (Tropical Style) พื้นที่ใช้สอย 42.36 ตารางเมตร 1 ห้องนอน 1 ห้องน้ำ ที่ดินก่อสร้าง 12.00x13.00 เมตร งบประมาณค่าก่อสร้าง 465,960 บาท
แบบบ้านชั้นเดียว สไตล์ทรอปิคอล (Tropical Style) พื้นที่ใช้สอย 42.36 ตารางเมตร 1 ห้องนอน 1 ห้องน้ำ ที่ดินก่อสร้าง 12.00x13.00 เมตร งบประมาณค่าก่อสร้าง 465,960 บาท
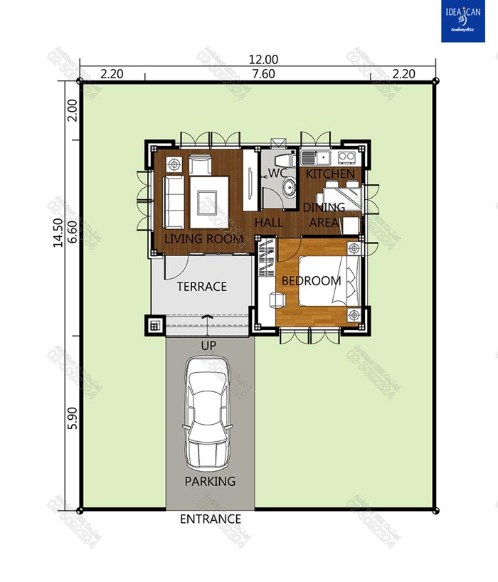
2. แบบบ้าน CO-H1-04801.09
แบบบ้านชั้นเดียวสไตล์คอนเทมโพรารี (Contemporary Style) พื้นที่ใช้สอย 41.72 ตารางเมตร 1 ห้องนอน 1 ห้องน้ำ ที่ดินก่อสร้าง 12.00x14.50 เมตร งบประมาณค่าก่อสร้าง 601,497 บาท
3. แบบบ้าน TR-H1-07001.10
แบบบ้านชั้นเดียว สไตล์ทรอปิคอล (Tropical Style) พื้นที่ใช้สอย 59.16 ตารางเมตร 1 ห้องนอน 1 ห้องน้ำ ที่ดินก่อสร้าง 12.00x15.50 เมตร งบประมาณค่าก่อสร้าง 650,760 บาท
4. แบบบ้าน CO-H1-06101.08
แบบบ้านชั้นเดียวสไตล์คอนเทมโพรารี (Contemporary Style) พื้นที่ใช้สอย 57.73 ตารางเมตร 1 ห้องนอน 1 ห้องน้ำ ที่ดินก่อสร้าง 7.40x9.40 เมตร งบประมาณค่าก่อสร้าง 696,879 บาท
5. แบบบ้าน MO-H1-09001.10
แบบบ้านชั้นเดียวสไตล์โมเดิร์น (Modern Style) พื้นที่ใช้สอย 82.66 ตารางเมตร 1 ห้องนอน 1 ห้องน้ำ ที่ดินก่อสร้าง 18.00x12.50 เมตร งบประมาณค่าก่อสร้าง 909,260 บาท
แบบบ้านชั้นเดียว 2 ห้องนอน 1 ห้องน้ำ
6. แบบบ้าน TR-H1-07201.10
แบบบ้านชั้นเดียวสไตล์ทรอปิคอล (Tropical Style) พื้นที่ใช้สอย 68.19 ตารางเมตร 2 ห้องนอน 1 ห้องน้ำ ที่ดินก่อสร้าง 11.50x16.50 เมตร งบประมาณค่าก่อสร้าง 750,090 บาท
แบบบ้านชั้นเดียวสไตล์ทรอปิคอล (Tropical Style) พื้นที่ใช้สอย 68.19 ตารางเมตร 2 ห้องนอน 1 ห้องน้ำ ที่ดินก่อสร้าง 11.50x16.50 เมตร งบประมาณค่าก่อสร้าง 750,090 บาท
7. แบบบ้าน MO-H1-09501.08
แบบบ้านชั้นเดียวสไตล์โมเดิร์น (Modern Style) พื้นที่ใช้สอย 84.90 ตารางเมตร 2 ห้องนอน 1 ห้องน้ำ ที่ดินก่อสร้าง 9.10x12.20 เมตร งบประมาณค่าก่อสร้าง 879,949 บาท
แบบบ้านชั้นเดียว 2 ห้องนอน 2 ห้องน้ำ
แบบบ้านชั้นเดียวสไตล์รีสอร์ต (Resort Style) พื้นที่ใช้สอย 86.22 ตารางเมตร 2 ห้องนอน 2 ห้องน้ำ ที่ดินก่อสร้าง 16.00x16.50 เมตร งบประมาณค่าก่อสร้าง 1,074,377 บาท
9. แบบบ้าน CO-H1-09701.08
แบบบ้านชั้นเดียวสไตล์คอนเทมโพรารี (Contemporary Style) พื้นที่ใช้สอย 87.78 ตารางเมตร 2 ห้องนอน 2 ห้องน้ำ ที่ดินก่อสร้าง 11.50x12.40 เมตร งบประมาณค่าก่อสร้าง 1,212,942 บาท
สำหรับคนที่กำลังมองหาแบบบ้านชั้นเดียว สำหรับนำไปก่อสร้างบ้านของตัวเอง ก็สามารถเข้าไปดูแบบบ้านเพิ่มเติมพร้อมดูรายละเอียดตัวบ้านและเงื่อนไขการขอแบบบ้านฟรีที่เว็บไซต์ databkk ได้เลยนะคะ
ขอบคุณข้อมูลและภาพประกอบจาก databkk
























