การรีโนเวทบ้านเป็นอะไรที่มักจะทำให้เราทึ่งอยู่เสมอ โดยเฉพาะกับการรีโนเวทบ้านในครั้งนี้ ที่เรียกได้ว่าเป็นการพลิกโฉมจากบ้านเก่าสุดธรรมดา เป็นบ้านใหม่หลังงาม จนใคร ๆ ก็อยากเก็บข้าวของเข้าไปอยู่ด้วย
สำหรับใครที่กำลังมองหาไอเดียรีโนเวทบ้านดี ๆ วันนี้เรามีเรื่องราวการรีโนเวทบ้านทั้งหลังของ คุณ HappyAries สมาชิกเว็บไซต์ดอทคอม มาฝาก โดยต้องบอกเลยว่าบ้านเดิมของเธอนั้นเป็นบ้านเก่าตั้งแต่ปี พ.ศ. 2526 แล้ว ทว่าเธอก็ได้แปลงโฉมใหม่ให้ออกมาเป็นบ้านสไตล์ญี่ปุ่นสุดทันสมัยโดนคนรุ่นใหม่แบบสุด ๆ ซึ่งการออกแบบทั้งหมดของบ้านหลังนี้ เธอเป็นคนลงมือเองทั้งสิ้น แถมเธอยังเป็นคนหาซื้อทุกอย่างและลงมือทำบ้านบางส่วนเองอีกด้วย ฉะนั้นใครที่อยากคุมงบพร้อมดูไอเดียการรีโนเวทบ้านดี ๆ อย่าพลาดชมรีวิวการแปลงโฉมบ้านครั้งใหญ่ของเธอเด็ดขาด
รีวิว : การรีโนเวทบ้าน พ.ศ. 2526 เป็นบ้าน พ.ศ. 2561
โดย คุณ HappyAries
เราตั้งใจรีโนเวทบ้านหลังนี้ให้เป็นบ้านที่อยู่อาศัยของเราเองค่ะ และก็แอบคิดว่าอาจจะเปิดเป็นสตูดิโอถ่ายรูปด้วย เพราะเรามีฐานลูกค้าอยู่แล้ว แต่ก็คิดว่ายังไม่เปิดดีกว่าค่ะ คงวุ่นวายนิดนึง ตอนนี้เราก็ใช้บ้านเราถ่ายสินค้าของเราอย่างเดียวค่ะ
คำเตือน : กระทู้นี้ยาวมาก และถึงแม้ว่าเราจะพิมพ์เอาไว้หมดแล้ว แต่มันจะช้าตอนใส่รูปมาก ๆ ค่ะ ถ้าเราลงไม่ทันใจก็อย่าว่ากันนะคะ >__< เริ่มกันเลยนะคะ
------------------------------
กว่าจะเจอกับหลังนี้ เราตระเวนดูมาเยอะมาก แต่ก็ยังหาไม่ได้สักที เราถึงขนาดว่าไล่จดบ้านเลขที่ของบ้านร้างไปคัดโฉนดที่กรมที่ดินกันเลย แต่ยังไม่เจอเจ้าของที่ปล่อยขายเสียที
โจทย์ของเราคือต้องอยู่ในละแวกเดิม เพราะชอบย่านนี้อยู่แล้ว อันที่จริงในซอยนี้เราก็เข้ามาดูก่อนหน้านี้แล้ว แต่ยังไม่มีป้ายแปะ และตอนที่เราเห็นป้ายประกาศขาย เราก็ยังไม่ได้สนใจมาก เพราะดูจากตัวบ้านแล้วน่าจะเกินงบแน่นอน แต่ก็คุยกับสามีว่าลองโทรดูแล้วกัน ปรากฏว่าเกินงบจริง ๆ แต่ก็ขอเข้าไปดูตัวบ้านหน่อย เจ้าของเดิมเขาก็โอเค
บ้านนี้เป็นบ้านครึ่งปูนครึ่งไม้ค่ะ ในวันที่เราได้เข้าไปดูบ้าน ไม่ได้มีความรู้สึกเย็นวาบหรืออะไรแปลก ๆ เหมือนที่เขาพูดกันเลย อุตส่าห์แอบหวังว่าจะมีโมเมนต์แบบนี้ 555 คือช่วงนั้นเดือนธันวาคม มันก็เย็นเป็นปกติอยู่แล้วแหละ และเขาก็ปลูกต้นมะม่วงไว้ที่หน้าบ้านถึง 2 ต้น มันก็คงจะมีลมเย็นเป็นปกติอ่ะนะ เราคิดอย่างนั้น
สภาพบ้านก็ตามรูปเลยค่ะ ภายนอกก็ค่อนข้างทรุดโทรมตามกาลเวลา ส่วนภายในนั้นยิ่งกว่า ลองชมภาพกันดูค่ะ







แต่ถึงสภาพภายนอกและภายในจะดูแย่ แต่ว่าบ้านนี้ไม่มีปลวกเลยค่ะ ช่างที่ทำบ้านให้แกก็แปลกใจมากว่าทำไมไม่มีปลวกเลย ทั้ง ๆ ที่ชั้น 2 เป็นไม้หมดเลย ทั้งพื้นและผนังค่ะ
ตั้งแต่เราเข้าไปดูบ้านวันแรก เราจินตนาการออกหมดเลยว่าจะดัดแปลงอะไรตรงไหน ทุบอะไรกั้นอะไร เราก็ขอถ่ายรูปทุกมุมของบ้าน เสร็จเราก็ออกมาคุยกันข้างนอก เราก็คุยกันเรื่องราคา (ตอนนั้นก็ยังไม่คิดว่าจะได้หลังนี้นะ)
เราลองต่อรองราคาดู เราบอกว่าเราต่อคำเดียว ถ้าไม่เกินงบเท่านี้ เราซื้อแน่นอน (เท้าความก่อนว่าบ้านหลังนี้ถือว่าราคาถูกแล้วสำหรับย่านนี้ เพราะเจ้าของรีบขาย แต่มันก็ยังเกินงบเราไง) เจ้าของบ้านถามว่าเอาจริงไหม ถ้าเอาจริงเขาลดให้ เพราะมีคนมาต่อราคาหลายคนแล้วก็ไม่เอา เราบอกว่าจริง ถ้าได้ราคาในใจเราเราโอเคเลย สรุปว่าเขาให้ค่ะ ตอนหลังมาทราบว่าเขาบอกว่าเราดูจริงจัง อยากได้จริง ๆ ไม่เหมือนคนอื่น เพราะเราถ่ายรูปไปทุกมุม สอบถามปัญหาทุกจุด ไม่เหมือนคนอื่นที่เข้าไปดู ๆ แล้วก็เดินออก แล้วเขาก็ถูกชะตาเรากับสามี บอกว่าดูเป็นเด็กดี พูดจาน่ารักด้วยค่ะ ^_^
พอเรากลับมาบ้าน เราลองเอาแปลนมาวาดลงกระดาษอย่างคร่าว ๆ เพื่อดูว่าภาพในหัวของเรามันสามารถทำออกมาได้จริงไหม ผลออกมาก็คือน่าจะได้นะ แต่เราไม่มีระยะที่ถูกต้อง เลยลองถามเจ้าของเดิมว่ามีแปลนเก่าเก็บไว้ไหม แกว่ามี แต่จำไม่ได้ว่าอยู่ตรงไหน ให้เราลองหาเอง =_=’ แล้วอะไรยังไงไม่รู้ เราเห็นกล่องกระดาษใบหนึ่งมีของทับ ๆ อยู่ เราเลยไปลองค้นดู ปรากฏว่าเจอค่ะ ! น่าประหลาดใจมาก ๆ ถือว่าเป็นโชคดีของเรา (ที่ขอแปลนบ้านนี่ยังไม่ได้โอนบ้านอะไรกันเลยนะ แค่เซ็นสัญญารอผลกู้)
ไม่รู้ว่าใครคิดยังไงกับเรื่องนี้นะคะ จะว่างมงายรึเปล่าก็อาจจะใช่ 555 ตั้งแต่บ้านหลังแรกแล้ว เอาเรื่องบ้านหลังแรกก่อน เราจะอธิฐานกับสิ่งศักดิ์สิทธิ์ ณ บริเวณนั้น ๆ เช่น บ้านหลังแรกอยู่ในโครงการ เราก็ไปไหว้ศาลพระภูมิของโครงการและศาลตายายในละแวกนั้น ขอพวกท่านว่าถ้าบ้านนี้เหมาะสมกับลูกจริง ลูกอยู่แล้วสุขสบาย ทำมาค้าขึ้น ไม่มีโรคภัยไข้เจ็บ ก็ขอให้ท่านดลบันดาลให้ลูกได้มา แต่ถ้ามันไม่ใช่ ก็ขอให้ท่านพิจารณาตามสมควร สรุปเราก็ได้บ้านมา
ส่วนหลังที่สอง (หลังนี้) เราอธิฐานกับพระในบ้านหลังนี้แบบเดียวกันกับหลังแรก ท้ายสุดเราก็ได้หลังที่สองมาเหมือนกัน เราเชื่อว่าเบื้องบนเขาจะรู้ดีกว่าเรา ให้เขาเป็นคนตัดสินดีกว่า อะไรแบบนี้ค่ะ ^^
แล้วมีเรื่องเหลือเชื่ออีกเรื่องด้วยนะคะ เรามารู้หลังจากย้ายเข้ามาแล้ว ว่าข้าง ๆ บ้านเขาเป็นญาติผู้ใหญ่แบบห่าง ๆ ทางฝั่งเราค่ะ ประมาณว่าเป็นเพื่อนคุณป้า คุณลุงตอนเด็ก ๆ และพี่สาวเขาก็เป็นสะใภ้ทางฝั่งเราค่ะ คือโลกกลมมาก ไม่น่าเชื่อเลยจริง ๆ อ้อ เราลืมบอกไปว่าก่อนเราจะซื้อ เราให้พ่อเรา (เคยทำรับเหมาฯ) และคุณลุงของเรา (ทำรับเหมาฯ อยู่) มาดูสภาพบ้านให้ว่ามันโอเคไหม เขาบอกว่าโครงสร้างก็ยังดีอยู่ เราก็เลยโอเค เพราะฉะนั้นถ้าใครจะซื้อบ้านมือสอง ก็ควรจะต้องปรึกษาผู้มีประสบการณ์เรื่องโครงสร้างบ้านด้วยนะคะ
------------------------------
พอเราได้แปลนแล้ว เราก็ลองเอาแปลนเก่ามาวาดใน Photoshop ค่ะ แล้วก็ลองวาดแบบใหม่ที่เราต้องการเข้าไปด้วย ออกมาก็จะประมาณนี้ค่ะ

- ตรงส่วนของสีฟ้านั้น เราเทปูนยกระดับขึ้นมา 20 เซนติเมตรค่ะ อยากให้มันเล่นระดับนิด ๆ แล้วก็แบ่งโซนการใช้งานให้ชัดเจนค่ะ แต่จะเว้นตรงส่วนหน้าบ้านเอาไว้นิดนึงให้เหมือนบ้านญี่ปุ่น ตรงนี้เขาเรียกว่า genkan (เก็งคัง) คือเราบ้าญี่ปุ่นมาก ใฝ่ฝันว่าอยากได้แบบนี้มาตลอดค่ะ มีโอกาสก็เลยทำเลย
- ตรงตัวอักษรสีชมพู เจาะประตูเพิ่มให้เป็นประตูทางเข้าหน้าบ้าน และเปลี่ยนประตูบานใหญ่บานเดิมเป็นประตูเลื่อนออกทางระเบียงหน้าบ้านแทนค่ะ
- 3 ในส่วนของเสากลางบ้าน แน่นอนว่าเราทุบออกไม่ได้ เราเลยทำที่กั้นขึ้นมา 90 เซนติเมตร เพื่อให้เสาไม่ดูเด่นจนเกินไปค่ะ อาจจะยังดูภาพไม่ออก แต่ถ้าเห็นภาพจริงก็จะเข้าใจค่ะ ^_^

อธิบายคร่าว ๆ นะคะ คือกั้นห้องให้เป็นสัดส่วนมากขึ้น เพิ่มห้องน้ำเข้าไป 1 ห้อง โดยเพิ่มเข้าไปตรงที่ระเบียงเดิมค่ะ ลองปรึกษาคุณลุงที่เป็นรับเหมาฯ แล้วเขาว่าทำได้ แต่เราไม่ได้ทำให้เป็นห้องน้ำเต็มพื้นที่เพราะมันใหญ่เกิน และน้องสาวลูกคุณลุง เขาเป็นสถาปนิก เขาแนะนำเรื่องฮวงจุ้ยว่าตรงนี้มันเป็นหน้าบ้าน ก็ให้เว้นที่เป็นระเบียงนิดนึงเพื่อแก้ฮวงจุ้ย (อารมณ์ประมาณว่าห้องน้ำไม่ได้อยู่หน้าบ้านนะ ระเบียงต่างหากที่อยู่หน้าบ้าน) อันที่จริงเราไม่ได้ซีเรียสอะไรเรื่องนี้เลย แต่ก็คิดว่าดีเหมือนกัน เพราะจะได้มีที่ตากผ้าอะไรแบบนี้ด้วยค่ะ (ที่บ้านเดิมมีระเบียงออกไปแบบนี้ แล้วเราชอบมาก) ตรงนี้จะไม่มีประตูเปิดออกไปนะคะ จะเป็นแค่หน้าต่างเปิดเอาไว้ตากผ้าเท่านั้น
ส่วนห้องน้ำเล็กอันเดิมที่มีอยู่แล้วก็เปลี่ยนการจัดวางสุขภัณฑ์ให้ใช้งานได้สะดวกขึ้นค่ะ
หน้าต่างจากเดิมที่เป็นบานเปิด เราเปลี่ยนเป็นอลูมิเนียมอบขาวบานเลื่อนทั้งหมดค่ะ อันนี้ใช้ช่องหน้าต่างเดิม เปลี่ยนแค่บานหน้าต่าง เพราะเนื่องจากชั้นบนนี้เป็นไม้ ถ้ามีการแก้ตำแหน่งมันจะยุ่งยากค่ะ ต้องตัดนู่นแปะนี่ เลยเอาแบบง่ายๆ ดีกว่า เพราะเรางบไม่เยอะค่ะ
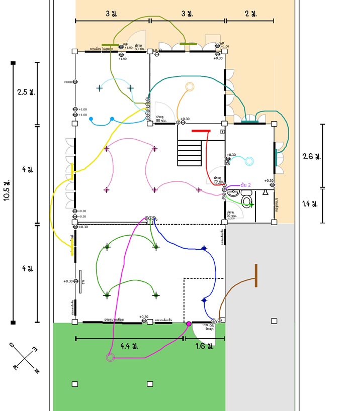
พอเรารู้แล้วว่าจะเอาอะไรวางตรงไหน ทุบตรงไหนทิ้ง เราก็มาวางตำแหน่งไฟ ตำแหน่งปลั๊กค่ะ อันนี้เราก็ใช้ Photoshop เหมือนเดิมค่ะ รูปนี้เป็นรูปที่เราส่งให้ช่างด้วยค่ะ อันนี้ต้องขอบคุณน้องสาวของคุณลุงด้วยค่ะ เขาเป็นสถาปนิก เขาสอนให้เราวาดพวกเส้นไฟและสัญลักษณ์ต่าง ๆ ค่ะ

- ชั้นบน
จะบอกว่า Photoshop ไม่เหมาะกับการเขียนแปลนบ้านนะคะ แต่เราใช้คล่องที่สุดก็เลยต้องใช้โปรแกรมนี้ แต่ไป ๆ มา ๆ เราเกิดอยากดูเป็น 3D ไอ้ครั้นจะไปจ้างคงไม่มีทางแน่ ๆ ไม่มีเงินขนาดนั้น เราเลยลองหาโปรแกรมที่เขาว่ากันว่าง่ายมาลองออกแบบดู เจออยู่ 2 ตัวคือ Google Sketch Up กับ Sweet Home 3D
เราลอง GSU แล้วเราว่ายาก เราเลยมาลอง SH3D อันนี้ง่ายเลย เราแนะนำนะคะ สามารถโหลดมาใช้ฟรีก็ได้ แต่พวกเฟอร์นิเจอร์มันจะไม่เยอะ สำหรับเราเราซื้อค่ะ ประมาณ 500-600 บาท ไม่แน่ใจ ก็ถือว่าคุ้มสำหรับเราค่ะ อันนี้เป็นเว็บเขานะคะ sweethome3d.com แบบที่ได้ก็จะประมาณนี้ค่ะ
- ตอนเราออกแบบก็ใส่ระยะจริงไปเลยนะคะ พวกขนาดของเฟอร์นิเจอร์ อะไรแบบนี้ ของในบ้านเรา 95% เราหาทางอินเทอร์เน็ตค่ะ เป็นพวกไม่ชอบออกนอกบ้าน ไม่ชอบเจอรถติด เราชอบอยู่บ้านมาก (ช่วงวัยรุ่นไม่เป็นแบบนี้นะ 555) ทีนี้ในเว็บมันก็จะมีขนาดบอกค่ะ ถ้าไม่มีก็ถามร้านเอา แล้วก็มาลองใส่ระยะในโปรแกรมค่ะ ในโปรแกรมมันจะมีตัวคนให้ใส่ด้วย เราก็ลองวางคนลงไปดู อันนี้มีประโยชน์มาก ๆ เลยนะคะ เพราะมันทำให้เรารู้ได้ว่า ตรงนี้แคบไปไหม เราจะเดินผ่านได้ไหม อะไรแบบนี้ค่ะ

------------------------------
ต่อไปจะมาดูหน้างานจริงกันค่ะ แต่ก่อนเราจะเริ่ม ขอพูดเกี่ยวกับช่างก่อนนะคะ ใครไม่อยากอ่านตรงนี้ ข้ามไปดูรูปแรกได้เลยค่ะ
ตอนแรกเราว่าจะให้คุณลุงที่ทำรับเหมาฯ ทำให้เรา แต่ว่าคิวแกอีกนานเลย เราเลยไปลองหาเอง ทีนี้เพื่อนแม่เขาเคยทำรับเหมาฯ กับคน ๆ นึง เขาก็เลยให้เราลองติดต่อไป เราคุยดูแล้วเราก็ถูกชะตานะ ลองเสนอราคามาก็โอเคเลย แล้วเขาก็กำลังจะจบงานจากที่เดิมพอดี เราก็เลยตกลงทำงานกับเขาค่ะ เราตกลงกันว่าเราเหมาแค่ค่าจ้าง ค่าของเราจะซื้อเอง เพราะเราทำงานส่วนตัว เราสามารถมาคุมเอง ไปซื้อของเองได้ เราอ่านรีวิวมาบอกว่าแบบนี้จะประหยัดกว่า และได้ของที่ตรงสเปคมากกว่า แต่ก็เหนื่อยมากเช่นกัน แต่เราก็เลือกแบบนี้ค่ะ แรก ๆ ก็สนุกดี หลัง ๆ เริ่มเหนื่อยเริ่มขี้เกียจละ 555
แต่เราถือว่าเราได้ช่างดีมากเลย อันไหนที่เอาอันเก่ามาใช้ได้ช่างเขาก็จะแนะนำว่าให้ใช้อันเก่า ทำให้ประหยัดไปได้เยอะ งานก็มีช้าบ้างไรบ้างตามปกติ (คือเราทำใจไว้บ้างแล้ว) สิ่งที่เราขออย่างเดียวคืออย่าหนีงาน จะช้าบ้างไรบ้างก็พออภัยได้
มีช่วงนึงเรานึกว่าเขาอาจจะหนี เพราะช่วงนั้นมีเรื่องแรงงานต่างด้าวที่ว่าจะโดนปรับหัวละ 400,000 แล้ววันนั้น ตำรวจก็มาตรวจบ้านเราพอดี ! แต่โชคดีมากที่แรงงานต่างด้าวไม่อยู่ (บ้านเราใช้อยู่ 2 คน) ตั้งแต่วันนั้นช่างเขาเลยไม่ให้ 2 คนนั้นเข้ามาอีกเลย ทีนี้งานก็ล่าช้ามากกกกก เป็นเดือนเลย เพราะ 2 คนนี้ถือเป็นแรงงานหลักเลยอ่ะ เราก็คิดว่าอย่างนี้ช่างเขาจะทิ้งงานเราไหม แต่สุดท้ายก็ไม่ทิ้งค่ะ เขาหาคนมาแทน แต่ไม่เก่งเท่า 2 คนนั้นนะ แต่ก็ต้องเอาอ่ะ คนงานหายากจริง ๆ แล้วพอกฎเปลี่ยนให้มีการผ่อนผัน ช่าง 2 คนนั้นเขาก็กลับประเทศเขาไปแล้วไง แล้วก็ติดต่อไม่ได้อีกเลย เซ็งสุด แต่ก็โอเคอ่ะค่ะ งานก็จบลงด้วยดี เพราะเราคุมงานเองด้วย เข้าหน้างานทุกวัน เพราะหลังเดิมกับหลังใหม่มันใกล้กันแบบว่าขับรถ 5 นาทีก็ถึง มีอะไรแก้ก็เลยบอกได้ทันท่วงที
ตอนนี้ช่างคนนี้ก็ได้กลายเป็นช่างประจำของที่บ้านไปแล้วค่ะ เพราะหลังจากจบงานบ้านเรา น้องชายสามีกับคุณพ่อสามีต้องการต่อเดิมบ้านใหม่พอดี เราก็แนะนำช่างนี้ไปให้เขา คุณพ่อสามีถูกอกถูกใจกับช่างคนนี้มาก ๆ เลยล่ะค่ะ
มาเริ่มกันเลยค่ะ แจ้งไว้ก่อนว่ารูปอาจจะไม่ได้เรียงกันตรงเป๊ะค่ะ เอาหลาย ๆ ช่วงเวลามารวมกัน

- ทุบแล้วจะเป็นแบบนี้ค่ะ บ้านจะว่างโล่งเลยค่ะ แต่รูปล่างนี้เราทำหน้าต่างใหม่แล้วนะคะ
- อันนี้เป็นหน้าบ้านแบบเดิมค่ะ
- เปลี่ยนเป็นแบบนี้ค่ะ ทางซ้ายเปลี่ยนเป็นบานเลื่อนกระจก ทางขวาเจาะช่องประตูและกระจกบานตายค่ะ
- อันนี้เป็นส่วนที่เราบอกว่าทำยกระดับขึ้นมา 20 เซนติเมตรค่ะ ก็จะใช้พวกเศษกำแพงที่ทุบครัวมาถมค่ะ
- อันนี้เทปูนแล้วค่ะ ใส่เหล็กไวเมทกันหน้าพื้นแตกด้วย ตอนแรกช่างจะไม่ใส่ให้ บอกว่าข้างล่างมันเป็นพื้นปูนอยู่แล้วไม่น่าจะแตก แต่พ่อกับลุงเรายืนยันว่าต้องให้ใส่ ก็เลยต้องใส่ค่ะ (พ่อกับลุงเป็นช่างสมัยเก่า เขาเลยจะเน้นความแข็งแรงทนทานไว้ก่อนค่ะ ซึ่งดีมาก)

- ต่อไปกั้นกำแพง 90 เซนติเมตร เพื่อกั้นระหว่างห้องรับแขกกับโต๊ะกินข้าวค่ะ ทำให้เสาไม่ดูตั้งอยู่ตรงกลางบ้านด้วยค่ะ และตรงนี้ตั้งใจจะให้เป็นโต๊ะทำงานด้วย เพราะเราทำงานที่บ้านค่ะ (ภาพนี้ปรับสว่างไปหน่อยค่ะ เพลินไปนิด >__<)
- มาดูตรงบันไดกันค่ะ เราใช้บันไดเดิม เพราะมันแข็งแรงมาก ๆ ไม้เนื้อแข็งอย่างดี ไม่มีปลวกซักตัวค่ะ ตรงราวบันไดปิดทึบหมดค่ะ ประตูห้องเก็บของใต้บันไดเราก็ย้ายเข้าไปข้างในแทนค่ะ
- ส่วนของข้างบนนั้นไม่รู้ว่าจะให้ดูอะไรจริง ๆ ค่ะ เพราะรื้อทั้งหมดแล้วก็กั้นใหม่ ก็เลยคิดว่าไม่ต้องดูดีกว่ามั้ง ไม่มีอะไรพิเศษ ที่มีอะไรสุด ๆ ก็คงจะเป็นส่วนของระเบียงที่ทำเป็นห้องน้ำค่ะ อันนี้เป็นภาพที่รื้อกำแพงตรงระเบียงออกค่ะ
- ส่วนรูปนี้ก็กั้นห้องธรรมดาค่ะ ชั้นบนเป็นไม้ เลยต้องกั้นห้องด้วยผนังเบาค่ะ ทำฝ้าชั้น 2 ใหม่หมด รูปหน้างานก็จะมีเพียงเท่านี้ค่ะ
------------------------------
ต่อไปเป็นส่วนที่เรากับสามีทำเองกันบ้างค่ะ เริ่มจากการปูพื้นบ้านชั้นล่างค่ะ พื้นบ้านชั้นล่าง ของเราทั้งหมดจะใช้เป็นไวนิลแบบม้วนค่ะ ที่เราเลือกใช้แบบนี้เพราะราคาถูก ทนน้ำ และปูเองได้ง่ายค่ะ ตอนนั้นเราหาข้อมูลเกี่ยวกับวัสดุปูพื้น อยากได้ตัวที่ถูกและสวย (แบบเสื่อน้ำมันปกติอันนี้ถูก แต่ไม่สวยนะ) ก็มาเจอตัวนี้ LG Hausys เห็นว่าเป็นของเกาหลี (LG แบรนด์เดียวกับเครื่องใช้ไฟฟ้านั่นแหล่ะค่ะ)
ตัวนี้จะไม่เหมือนเสื่อน้ำมันนะคะ ไม่เหมือนเลย ผิวไม่เงา ไม่เรียบ มีเท็กเจอร์เป็นลายไม้นูน ๆ ด้วยค่ะ เหมือนกระเบื้องยางทั่วไปเลยค่ะ
วิธีปูก็ปูเหมือนเสื่อน้ำมันค่ะ ตัดส่วนที่ไม่ใช้ออกด้วยคัตเตอร์ได้เลย ตรงส่วนที่เป็นขอบหรือรอยต่อก็ใช้กาวแปะพรมติดค่ะ หรือถ้าใครขยันก็สามารถเอากาวยางที่ใช้ปูกระเบื้องยางมาทาก็ได้ค่ะ แต่เราขี้เกียจ บวกกับเรากะว่าใช้ไป 4-5 ปีแล้วเราจะเปลี่ยนเป็นอย่างอื่นก็เลยไม่อยากติดให้มันลอกออกยากค่ะ


จากการที่ใช้มาประมาณ 3 เดือน เราจะมารีวิวให้ฟังว่ามีข้อดีข้อเสียอะไรบ้างนะคะ เผื่อว่าจะมีคนสนใจลองแบบเรา
ข้อดี :
- ราคาถูก เมื่อเทียบกับไวนิลแบบกาว แบบคลิก หรือลามิเนต
- ปูง่าย สามารถทำเองได้
- มีรอยต่อน้อย ทำให้ปูแล้วสวยงาม และไม่มีปัญหาการหดตัวของกระเบื้องแต่ละแผ่นเหมือนกระเบื้องยาง
- ทนน้ำ เพราะเป็นกระเบื้องยางชนิดหนึ่ง
ข้อเสีย :
- อายุการใช้งานน้อย เขาเคลมว่า 5 ปี
- ตรงรอยต่อแต่ละแผ่นอาจจะมีการเผยอขึ้น ทำให้มีความชื้นเข้าไปด้านใน
- พื้นบาง ถ้าพื้นของเราไม่ได้ระดับหรือเป็นคลื่น เราจะรู้สึกได้เลยค่ะ เพราะมันบางแค่ 1-2 มิลลิเมตรเท่านั้น
- เกิดรอยย่นได้ง่าย เช่น ตรงขาเก้าอี้ หากมีน้ำหนักกดลงไปและขยับขาเก้าอี้ ตรงนี้ก็อาจทำให้แผ่นพื้นย่นได้ อันนี้เราเจอเองกับตัวตรงที่สามีนั่งทำงานค่ะ แต่ส่วนของเรายังไม่เจอ อาจจะเพราะน้ำหนักเราน้อยกว่า
เหมาะกับพื้นประเภทไหน :
- พื้นเรียบ เช่น ปูนขัดมัน หรือปูทับพื้นเดิมที่เรียบ ๆ
- ไม่เหมาะปูทับพื้นกระเบื้อง เพราะใช้ไปนาน ๆ แผ่นจะตกร่องเป็นรอยตามยาแนวกระเบื้องค่ะ
ซื้อได้ที่ไหน : บุญถาวร แผนก DIY หรือสั่งทางเพจนี้ค่ะ @nrdc.thailand
สำหรับเรา เราชั่งน้ำหนักและเงินในกระเป๋าแล้ว เรายอมค่ะ 5 ปีเราเปลี่ยนก็ได้ เพราะลองไปจับของจริงแล้วมันก็สวยดี น่าจะกันน้ำ (ฉี่หมา) ได้จริง ปูเองก็ได้ง่าย ๆ ราคาก็ไม่แพง แค่ตารางเมตรละ 205 บาท (ถ้าเป็นลามิเนตก็ต้องมี 370 บาทขึ้นแล้ว) ก็เลยลองดูค่ะ ถามว่าตอนนี้ใช้มา 3 เดือนพอใจไหม ก็ถือว่าพอใจมากค่ะ เรื่องรอยย่นตรงขาเก้าอี้ไม่ใช่ปัญหาอะไรเท่าไหร่ค่ะ
เอาเป็นว่าตัวนี้ถ้าใครคิดว่าจะใช้แบบยาว ๆ ไม่อยากเปลี่ยนก็ไม่แนะนำค่ะ แต่ถ้าใครงบน้อย รับกับข้อเสียได้ก็ลองใช้ดูนะคะ ^_^
ต่อไปงานปูกระเบื้องก็มาค่ะ ชาตินี้ก็ไม่คิดว่าจะได้ทำ แต่งบมันน้อยมากจริง ๆ ค่ะ อะไรที่ทำเองได้ก็ต้องทำค่ะ แต่งบ้านนี่งบบานจริง ๆ ค่ะ มีหลายท่านพูดเอาไว้ว่าต้องเผื่องบไว้อีก 20-30% อันนี้จริงมากเลยค่ะ เรานี่คุมงบแบบสุด ๆ จริง คำนวณออกมาก่อนตลอดว่าอะไรเท่าไหร่ ท้ายสุดก็มีบานบ้างค่ะแล้วก็รูปอาจจะไม่ได้มาทุกขั้นตอนนะคะ เพราะตอนทำมือมันเลอะมากเลยค่ะ
ผสมปูนตามอัตราส่วนที่อยู่ข้างถุง ผสมแล้วทิ้งไว้ให้เซ็ตตัวตามที่คู่มือบอกเลยนะคะ เราใช้ปูนจระเข้สีเงินค่ะ พนักงานที่โฮมโปรแนะนำมาค่ะ นำปูนมาป้ายที่พื้น แล้วใช้เกรียงหวี ปาดให้เป็นร่อง ๆ แต่เราไม่มีเกรียงหวี และไม่อยากซื้อด้วย เพราะใช้แค่ครั้งเดียว เลยหาอะไรมาปาด ๆ ให้เป็นร่องค่ะ




- พอทำส่วนปกติเสร็จหมดแล้ว เรามาไล่ตัดกระเบื้องตรงส่วนขอบทีละแผ่นค่ะ ส่วนนี้เราให้สามีทำค่ะ จะใช้ลูกหมูหรือใช้เครื่องตัดกระเบื้องก็ได้ค่ะ (อันนี้จะง่ายกว่า แต่เราไม่มี) เสร็จแล้วรู้สึกว่าต้องรอ 24 ชั่วโมงก่อนลงยาแนวค่ะ การยาแนวก็ไม่ยากค่ะ ซื้อยาแนวมาผสมตามอัตราส่วน แล้วก็ใช้เกียงปาด หรืออะไรก็ได้ที่แข็ง ๆ ปาดไปตามร่องค่ะ รอจนกว่ายาแนวจะเซ็ตตัว แล้วเอาฟองน้ำชุบน้ำมาเช็ดคราบออกหรือจะใช้ผ้าชุบน้ำก็ได้ค่ะ แต่ไม่ใช่ว่ารอให้แห้งมากนะคะ เพราะเดี๋ยวเช็ดคราบไม่ออกค่ะ
- ผลงานที่เสร็จแล้วจะได้ออกมาเป็นแบบนี้ค่ะ อร๊าย ภูมิใจ >___< พื้นที่ประมาณ 2.5 ตารางเมตร ทำไปประมาณ 3 วันค่ะ นานแท้ o_O !!!
------------------------------
ในตอนนี้จะโชว์รูปการตกแต่งภายในทั้งหมด (เท่าที่เงินจะทำได้) ให้ดูค่ะ ส่วนภายนอกจะไม่ค่อยมีให้ดูเลย หรือเรียกว่าไม่มีให้ดูเลยก็ได้ค่ะ 555 งบหมดแล้ว ต้องทำข้างในก่อน
ภาพที่ถ่ายมานี้ เพิ่งย้ายเข้าบ้านได้ประมาณ 3 เดือน และเราก็จัดของก่อนถ่ายด้วย มันก็จะดูเป็นระเบียบนิดนึงค่ะ (แต่อันที่จริงบ้านเราไม่ค่อยรกค่ะ เพราะสามีเป็นคนไม่ชอบให้วางอะไรเกะกะ ถ้ามีอะไรขัดหูขัดตาเขาจะเก็บเรียบค่ะ บ้านปกติก็เลยไม่ค่อยรกค่ะ)
หมายเหตุ : บ้านเราไม่ได้กว้าง แต่ดูกว้างเพราะใช้เลนส์ wide ถ่ายค่ะ เฉพาะตัวบ้านหน้ากว้าง 6 เมตรค่ะ ไปดูกันเลยดีกว่าค่ะ เริ่มจากประตูบ้านก่อนนะคะ เราภูมิใจเสนอตั้งแต่หน้าบ้านเลยทีเดียว นั่นก็คือบ้านเลขที่ค่ะ

- เมื่อเปิดประตูรั้วเดินเข้ามามองขวามือจะเจอสนามหญ้าและเหล่าต้นไม้ของสามีเราค่ะ อีกเหตุผลหนึ่งที่ซื้อบ้านเดี่ยวเพราะสามีเขาอยากได้สวน อยากปลูกต้นไม้ค่ะ เราก็รีเควสไปว่าบ้านจะออกมาแนวนี้นะ เอาต้นไม้ที่มันเข้ากับบ้านนะ เขาก็จัดให้ค่ะ จะบอกว่าสนามหญ้ากับต้นไม้นี่ก็ช่วยกันปลูกนะคะ สามี 95% เรา 5% ค่ะ อิอิ
- มาดูภาพบ้านมุมกว้างกันบ้างค่ะ อันนี้ไม่ได้ถ่ายสวยนะคะ เรารีทัชเอาค่ะ ภาพจริงท้องฟ้าอย่างขาวเลย เราเอาท้องฟ้ามาแปะเองค่ะ 555
- เดินเข้ามาอีกหน่อยก็ถึงหน้าประตูบ้านค่ะ ประตูใช้เป็น UPVC ค่ะ จริง ๆ ก็อยากได้ไม้แท้ หรือที่เป็นเหล็กแบบญี่ปุ่นค่ะ แต่ว่างบน้อยมาก เลยใช้อันนี้ไปก่อน มีตังค์แล้วค่อยเปลี่ยนค่ะ ประตูในบ้านเราทุกบานซื้อร้านที่บางโพค่ะ แต่สั่งในเน็ตเอานะ ไม่ได้ไปเอง แล้วกว่าจะหาประตูแบบที่มีช่องแสง แบบเรียบ ๆ สีขาวได้นี่แทบร้องไห้เลยค่ะ
- จริง ๆ ตรงส่วนที่เป็นหินสีขาวนี่เราออกแบบไว้แล้วว่าจะมีหินก้อนใหญ่หรือต้นไม้มาวางประดับ แต่งบหมดค่ะ เอาเงินไปทำให้บ้านอยู่ได้ก่อนค่ะ
- ต่อไปขอเรียนเชิญทุกท่านเข้าบ้านนะคะ เปิดประตูมาก็จะเป็นแบบนี้ค่ะ genkan ที่รอคอย เราชอบตรงส่วนนี้มาก แทบจะมากที่สุดในบ้านเลยก็ว่าได้ เราอ่านการ์ตูนญี่ปุ่นแล้วเขามีแบบนี้ทุกหลังเลย อยากมีมาก พอได้โอกาสก็จัดเลยค่ะ (แถมรูปลูก ๆ ทั้ง 3 ตัวนะคะ)

- มองออกไปทางหน้าบ้านจะเป็นแบบนี้ค่ะ จริง ๆ พื้นที่ตรงนี้สั้นมากเลยนะคะ ประมาณ 3 เมตร แต่ใช้เลนส์ wide เลยดูลึกค่ะ ตรงนี้แหล่ะค่ะที่เราปูกระเบื้องเอง
- อันนี้เป็นมุมที่จะไปห้องรับแขกแล้วค่ะ สังเกตทางขวามือของรูปจะมีไม้อยู่ อันนั้นเป็นส่วนของชั้นวางของของห้องรับแขกค่ะ
- ถ่ายมุมกว้างให้เห็นการเชื่อมกันของ 2 พื้นที่ค่ะ จะได้มองภาพออก ^_^
- นี่ค่ะ ส่วนของห้องรับแขกของเรา ก็คือเดินออกจาก genkan มาก็เจอเลยค่ะ
- มุมกว้าง ๆ จะเป็นแบบนี้ค่ะ
- อันนี้แถม อิอิ




ส่วนโต๊ะไม้อันนี้เราได้มาจากร้านมือ 2 ที่ขายของจากญี่ปุ่นค่ะ แต่ตัวนี้เป็นมือหนึ่ง ที่มีตัวเดียว เหมือนว่าจะเป็นของค้างสต๊อกจากญี่ปุ่นค่ะ เราโชคดีมากที่เขาลงขายพอดี เราทักไปถามเขาตลอดว่าของเข้ารึยัง พอเข้าปุ๊บ เราก็รีบชวนสามีไปดูเลย แล้วก็ได้มาครอบครองค่ะ ตัวนี้ราคา 1,000 บาทมั้งคะ ไม่แน่ใจ เป็นของ Yamazen ค่ะ
- มองออกไปทางซ้ายมือจากห้องรับแขกก็จะเป็นสวนหน้าบ้านค่ะ ประตูเลื่อนตรงนี้ก็สั่งทำค่ะ เป็นเจ้าที่ช่างรับเหมาเขาแนะนำมาอีกที ราคาดีค่ะ คุยงานก็ง่าย ช่างเขาอยู่แถวดอนเมืองค่ะ (ช่างผล 086-057-2358 ประตูหน้าต่าง อลูมิเนียมค่ะ)
- ถ้ามองทางซ้ายมือของห้องรับแขกก็จะเป็นแบบนี้ค่ะ เห็นไปถึงหลังบ้านเลยค่ะ ตรงเคาน์เตอร์ครัวตรงนู้นเป็นส่วนที่เราทุบออกค่ะ เพื่อให้บ้านมันโล่ง ๆ ค่ะ เราอยากให้ทุกส่วนมันเชื่อมต่อกัน เวลาทำอะไรก็จะได้เห็น ได้พูดคุยกันตลอดค่ะ
- ต่อไปเราจะพาเดินลงมาจากพื้นที่ยกระดับขึ้นไปค่ะ ตรงนี้เรามีข้อแนะนำจากความผิดพลาดของเราค่ะ เราให้ช่างเทพื้นสูง 20 เซนติเมตร แต่เราว่ามันสูงไป ถึงแม้ตอนนี้จะชินแล้ว แต่ถ้าใครจะทำแบบนี้ เราว่าสัก 17-18 เซนติเมตร น่าจะกำลังสบายค่ะ (อย่าลืมเผื่อระยะของพื้นด้วยประมาณ 3-5 มิลลิเมตรค่ะ) อ้อ พื้นตรงส่วนนี้เป็นส่วนที่เราปูกระเบื้องยางเองค่ะ
- มองภาพกว้าง ๆ จะเป็นแบบนี้ค่ะ ส่วนที่เป็นที่ถอดรองเท้า (เก็งคัง) จะอยู่ทางซ้ายมือ ดูในรูปจะเห็นว่ามีกำแพงกั้นตรงหน้าเก็งคังเลย อันนี้เราก็ให้ช่างก่อขึ้นมาใหม่เพื่อให้เป็นสัดส่วนชัดเจนค่ะ

ส่วนลิ้นชักตรงกลางนั่นของอิเกียค่ะ อ้อ แล้วที่เห็นว่าชั้นลิ้นชักมันโผล่มานิดนึงอันนั้นตั้งใจนะคะ ไม่ใช่ว่าไม้ไม่พอ สามีเราเขาบอกว่าไม่อยากให้โต๊ะมันกว้างเกิน กลัวพื้นที่โต๊ะกินข้าวจะแคบค่ะ เลยทำหดเข้าไป 10 เซนติเมตรค่ะ
- ข้างหลังโต๊ะทำงานก็จะเป็นโต๊ะกินข้าวค่ะ โต๊ะกินข้าวซื้อจากอิเกียค่ะ เป็นรุ่นที่สามารถยืดความยาวโต๊ะได้ จากที่นั่งได้ฝั่งละ 2 คน ยืดกลายเป็น 4 คนได้ค่ะ ส่วนเก้าอี้เราซื้อในงานเฟอร์นิเจอร์ค่ะ ซื้อมาทั้งหมด 6 ตัว รวมกับอีก 2 ตัวข้างบนด้วยค่ะ ที่เห็นในรูปนี้ ส่วนของขาจะเป็นไม้แท้ค่ะ ส่วนของที่นั่งที่เป็นสีขาวถ้าจำไม่ผิดจะเป็นพลาสติกค่ะ
ที่เห็นวางอยู่ที่พื้นก็จะเป็นหุ่นยนต์ดูดฝุ่นของ Mr.Robot ค่ะ เนื่องจากว่าแม่บ้านเพิ่งลาออกไป (จริง ๆ ก็ไม่ได้ลาออกหรอก ขอลากลับบ้านแล้วไม่กลับมาอีกเลย…) ก็เลยต้องหาตัวช่วยค่ะ ไปเดินโฮมโปร เอ็กโปมา เจอตัวนี้จัดโปรอยู่ค่ะ ถูกกว่ายี่ห้ออื่น ๆ มาก ได้ของแถมอีก 2 ชิ้นด้วย เซลล์ก็แนะนำดี แถม Mr. Robot ก็เคยมาใช้บริการที่สตูดิโอของเราค่ะ เราก็เลยเลือกเจ้านี้ค่ะ
- มาดูฝั่งบันไดกันบ้างค่ะ ในภาพนี้ถ้าสังเกตดี ๆ จะเห็นประตูถึง 3 บานค่ะ ประตูที่อยู่ข้างหลังบันไดนั่นจะเป็นห้องเก็บของที่ใช้งานบ่อย ๆ ค่ะ เช่น เครื่องล้างจาน เครื่องดูดฝุ่น ชามข้าวหมา อะไรแบบนี้ค่ะ
- ส่วนประตูนี้ (ทางด้านขวา) จะเป็นประตูห้องน้ำค่ะ ส่วนประตูทางซ้ายมือ จะเป็นห้องเก็บของที่ไม่ค่อยได้ใช้ค่ะ และถ้ามีคำถามว่า ทำไมไม่มีราวบันได้ งบหมดเหรอ ? ไม่ใช่ค่ะ อยากได้แบบนี้จริง ๆ พ่อบอกว่าตอนแก่จะรู้สึก เราก็บอกว่าเดี๋ยวแก่แล้วค่อยทำค่ะ ^_^
- อันนี้เป็นห้องน้ำของข้างล่างค่ะ เราก็เปลี่ยนตำแหน่งสุขภัณฑ์ใหม่ทั้งหมดเลยค่ะ เอาไว้เดี๋ยวทำ Befor-After เทียบกันให้ดูนะคะ
- อันนี้เป็นห้องเก็บของข้างหลังบันไดค่า ปัจจุบันรกกว่านี้แล้วค่ะ T__T
มาต่อที่ห้องสุดท้ายของชั้นล่างค่ะ นั่นก็คือห้องครัวนั่นเอง ห้องนี้ถือเป็นห้องอันดับ 2 ที่ชอบรองลงมาจากเก็งคังค่ะ ตัวบอดี้ภายนอกของเคาน์เตอร์เป็นไม้สนประสานค่ะ ภายในเป็นปาร์ติเกิลค่ะ เราขอให้ร้านทำแบบนี้เพราะจะประหยัดงบค่ะ ส่วนท๊อปเป็นไม้โอ๊คค่ะ

ปัญหาที่เราเจอคือส่งแบบให้ช้า วันติดตั้งงานก็ไม่เรียบร้อย ต้องเข้ามาแก้งานอีก แต่สิ่งที่ดีคือน้องเจ้าของรับผิดชอบมาก ตามแก้งานให้จนจบค่ะ ก็อาจจะมีเสียอารมณ์ไปบ้าง แต่ว่าถ้าพูดคุยกันเข้าใจ งานออกมาตามที่ตกลง มีปัญหาแล้วเผชิญหน้าแก้ไข เราโอเคค่ะ ยังไงถ้าใครจะทำกับเจ้านี้ต้องคุยงานละเอียดๆ นะคะ ส่วนข้อดีของเจ้านี้คืองานเขาสวย ราคาจับต้องได้ค่ะ
ส่วนคนที่ชอบสไตล์นี้ อยากได้บ้าง เราขอแนะนำว่าคุณควรจะเข้าใจถึงธรรมชาติของไม้สนจริงๆ ไม้สนนั้นเป็นไม้เนื้ออ่อนมาก ขนาดที่ว่าเอาเล็บจิกก็เป็นรอยได้แล้ว และเนื่องจากเป็นไม้แท้ จะมีโอกาสที่ไม้จะหดตัว-ยืดตัวได้สูงเลยค่ะ เราเจอมาแล้ว ช่วงที่อากาศหนาวมากๆ ไม้มันหดค่ะ ที่ยาวแนวเอาไว้มันก็แยกออกจากกันหมด แต่ซักพักมันก็คืนตัวเหมือนเดิมค่ะ ตรงจุดนี้ก็ต้องรับให้ได้ สำหรับท๊อปที่เป็นไม้โอ๊ค ก็ไม่ได้เป็นไม้เนื้อแข็งอะไรเท่าไหร่ เป็นรอยง่ายมาก ถ้าวางของร้อนเกินไปก็อาจจะด่างหรือเป็นรอบไหม้ดำๆ อีก คือครัวไม้เนื้ออ่อนนี่ดูแลยากจริง ๆ ค่ะ ถ้าจะทำ ควรจะหาข้อมูลให้มาก ๆ ค่ะ นี่ยังไม่รวมเรื่องปลวกนะคะ









- ลิ้นชักกลาง ในลิ้นชักนี้ก็เปิดแล้วถ่ายเลยนะคะ รกหน่อยก็ไม่เป็นไรเนอะ 555 (แอบโดนสามีบ่นว่าไม่จัดก่อน)
- ลิ้นชักล่างใหญ่สุด ใส่พวกหม้อกับกระทะค่ะ
- ลิ้นชักเครื่องปรุงเขาไม่มีไม้กั้นด้านข้าง เราเลยไปซื้อขาม่านยืดหดได้จากไดโซะมาใส่ค่ะ ขวดจะได้ไม่หล่น
- สำหรับครัว เราก็ออกแบบไปให้เขานะคะ ใช้โปรแกรม Sweet Home 3D เหมือนกันค่ะ เราไม่รู้ว่าเขามีบริการออกแบบด้วยไหม แต่เรามีแบบในใจแล้ว เราเลยทำไปให้เขาดีกว่า จะได้ถูกใจเราค่ะ
ต่อไปเป็นส่วนของกระเบื้องค่ะ กระเบื้อง Subway ในไทยเท่าที่เราเจอมีแค่ 2 ที่ค่ะ อีกที่หนึ่งเราไม่ได้ใช้ เพราะค่าส่งมาที่เราแพง เราใช้อีกเจ้าที่ชื่อว่า @thethreetouch ค่ะ แอดมินใจเย็นดีค่ะ เราถามจุกจิกก็ไม่ว่า แถมตอบกลับมาอย่างละเอียดด้วยค่ะ
เขาจะมี 2 แบบเซรามิกกับดินเผา จริง ๆ เราชอบดินเผามากกว่า แต่อันนี้เราใช้แบบเซรามิก เพราะตอนนั้นดินเผาจะต้องรอของ แต่เซรามิกได้เลย และราคาของดินเผาจะแพงกว่าด้วย เราเลยใช้เซรามิกค่ะ ส่วนกระเบื้องเขามีหลายไซส์เลยนะคะ เราใช้ไซส์ 3x6 นิ้วค่ะ ตารางเมตรละ 750 บาท เราใช้แค่ 3 ตารางเมตรค่ะ เหลือหน่อยนึงด้วย
เราติดกันน้ำมันกระเด็นค่ะ เคยอ่านเจอหลาย ๆ ท่านบอกว่าไม่ควรใช้กระเบื้อง เพราะตรงยาแนวมันจะเป็นคราบ อันนี้เราก็ไม่แน่ใจเหมือนกัน เพราะที่บ้านเก่าก็ใช้แบบนี้ แต่แค่ 3 ปี เลยไม่รู้ว่ายังไง แต่พอดีว่าชอบ ก็เลยเอาแบบนี้ค่ะ 555 (ไม่ค่อยจะถูกต้องเท่าไหร่นะ)




- งานโชว์บันไดก็มาค่ะ ก็จะขี้อวดหน่อย ๆ นะ คือบ้านนี้เราทำเอง ออกแบบเอง คุมงานเองทั้งหมด ก็ขออวดหน่อยนึงค่ะ ^___^
- โคมไฟอันนี้เป็นแบบสองทางค่ะ ส่วนตัวของโคมไฟก็ไปได้ในงานโฮมโปร เอ็กโปร์ค่ะ พอขึ้นมาก็จะเจอแบบนี้ค่ะ เป็นทางเดินยาว ๆ (ก็ไม่ได้ยาวมากหรอกค่ะ) สุดทางก็วางตู้เย็น แล้วก็หิ้งพระค่ะ ประตูทางขวามือเป็นห้องนอนเล็กค่ะ ประตูทางซ้ายที่ใกล้ ๆ กับเรา อันนี้ห้องนอนใหญ่ที่เรานอนค่ะ ส่วนประตูทางซ้ายที่ไกลออกไปอันนั้นเป็นห้องน้ำเล็กของชั้นสองค่ะ
- มาดูห้องนอนใหญ่ที่เรานอนกันก่อนค่ะ เราเอาฟูกนอนพื้น เพราะกันหมากระโดดขึ้นเตียงค่ะ อยู่ที่บ้านเดิมเขากระโดดขึ้นกระโดดลงบ่อยมาก กลัวว่าตอนเขาแก่กระดูกจะไม่ดีค่ะ เลยนอนพื้นดีกว่า
ส่วนพื้นชั้นบน เราใช้เป็นแบบไวนิลค่ะ ไม่ใช้ลามิเนต เพราะที่บ้านเดิมเคยใช้แล้ว มันไม่ทนน้ำเลย แล้วเลี้ยงหมา 3 ตัว บางทีก็ฉี่เรี่ยราด ใช้เป็นไวนิลแบบนี้ดีกว่าค่ะ ราคาสูงกว่าแต่ก็ต้องยอมค่ะ (พื้นชั้นสองเราใช้ของยี่ห้อนี้ค่ะ @zenfloorpage) คุณกวางที่เป็นเซลล์ก็พูดจาดีค่ะ ใจเย็นด้วย คุณแจ๊คที่เป็นคนคุมงานก็ดีค่ะ เรามีคอมเพลนบางจุด เขาก็ไม่ละเลย แวะเข้ามาดูหน้างานให้อีกรอบด้วยค่ะ เจ้านี้เราแนะนำให้น้องชายสามีไปใช้งานด้วยเหมือนกัน งานก็ออกมาดีค่ะ ถ้าไม่ลืมจะรีวิวหน้างานจริงให้อีกทีด้านล่างค่ะ



- โต๊ะหัวเตียงซื้อจากอิเกียค่ะ อันนี้แนะนำว่าถ้าซื้อมาแล้วควรเอามาเคลือบแลคเกอร์หน่อยค่ะ เพราะเขาไม่ได้เคลือบอะไรมาเลย ถ้ามาใช้งานจริงแล้วโดนน้ำ หรือสกปรก เนื้อไม้มันจะเสียได้ง่าย ๆ เลยค่ะ อันนี้ของเราก็เคลือบค่ะ พอดีว่ามีของเหลือมาจากที่ทำโต๊ะทำงานค่ะ ส่วนหน้าต่างหัวเตียงเรา ถ้าสังเกตดี ๆ จะเห็นว่ามันอยู่ไม่กลางเตียงค่ะ แต่เราให้ช่างติดม่านติดแบบหลอก ๆ ให้ดูเหมือนว่ามันกลางค่ะ ส่วนร้านม่านร้านนี้ เราไม่ค่อยถูกใจนะคะ ไม่ขอรีวิวแล้วกันค่ะ
- อีกมุมนึงค่ะ หน้าต่างตรงโต๊ะทำงานจะมองลงไปเห็นสนามหญ้าหน้าบ้านค่ะ ส่วนช่องเล็ก ๆ ตรงนั้นคือทางเข้า walk-in closet ค่ะ อันที่จริงเราว่าจะติดม่านไม่ก็ประตูค่ะ แต่ว่ายังไม่มีเวลาไปซื้อมาทำค่ะ
- นี่ค่ะ วิวจากโต๊ะทำงาน ถามว่าได้ดูบ่อยไหม ? ไม่เคยเลยค่ะ ได้มองลงมาแค่ตอนเปิดหน้าต่างตอนเช้าค่ะ =__=’
- อันนี้เป็น walk-in closet ของเราค่ะ เสื้อผ้าเรามีกันแค่นี้ค่ะ เราเป็นผู้หญิงที่ไม่ได้มีเสื้อผ้าเยอะค่ะ แล้วนี่ย้ายบ้านมาก็คัดทิ้งไปแล้วด้วยค่ะ เลยยิ่งน้อยไปใหญ่ ตอนแรกนึกว่าจะไม่พอ ก็ไปซื้อราวสีขาวมาเพิ่ม ปรากฎว่าไม่มีของจะแขวนค่ะ
walk-in closet ของเราเป็นเฟอร์ลอยตัวทั้งหมดค่ะ ที่ไม่ได้ทำบิวท์อินเพราะเรื่องงบก็ส่วนหนึ่งค่ะ และติดปัญหาที่ว่าผนังมันเป็นผนังเบาด้วยค่ะ เลยไม่ค่อยมั่นใจว่าถ้าเอาอะไรไปยึดมันจะทนไหม ก็เลยเอาแบบนี้ดีกว่าค่ะ ประหยัดกว่ากันมาก ลองคิดคร่าว ๆ ทั้งห้องนี้แค่ 7,000-8,000 บาทค่ะ (ไม่รวมตู้กระจกอันนั้น เราเคยขายเครื่องประดับเลยซื้อมาโชว์ค่ะ แต่ความจริงไม่ค่อยได้ใช้ค่ะ) ราวแขวนเสื้อที่อยู่ทางซ้าย 2 ชิ้นนั้นจากอิเกียค่ะ ชิ้นละ 2,000 บาท โดยประมาณ ราวแขวนที่โล่ง ๆ อยู่ตรงกลาง อันนั้นก็จากอิเกียน่าจะ 600-800 บาท ชั้นวางเสื้อผ้าทางขวาก็จาก ikea ค่ะ 1,990 บาท กล่องพลาสติกล่างซ้ายใส่พวกชั้นใน ถุงเท้า จากโฮมโปรค่ะ ไม่กี่ร้อยบาท

- อันนี้เป็นห้องนอนเล็กค่ะ มีของอยู่แค่นี้เองค่ะ (อันนี้ถ่ายตอนแม่มานอนด้วย ก็จะแอบรกนิดนึงค่ะ)
- มาถึงห้องสุดท้ายของบ้านแล้วค่ะ เป็นห้องน้ำขนาดจิ๋วหลิวค่ะ เล็กมาก แต่ก็ครบทุกฟังชันก์ค่ะ อ่างล่างหน้าขนาดเล็กมาอันนั้นซื้อจากโฮมโปรค่ะ 3,000–4,000 บาทค่ะ
------------------------------
รูปภาพแบบ Before-After ค่ะ ขอเล่าก่อนนิดนึงว่า อันนี้มีเพื่อนบอกว่าขอให้ทำให้หน่อย จะเอาไปให้แฟนดูว่าซื้อบ้านเก่าแล้วทำออกมาก็สวย พอเราทำเสร็จ ส่งให้เพื่อน มันถามว่า ส่งมาทำไม =.=\' เลยคิดว่าไหน ๆ ก็ทำรูปมาแล้ว เลยเอามาลงให้ดูกันค่ะ






















