
เรียบเรียงข้อมูลโดยกระปุกดอทคอม
ขอขอบคุณภาพประกอบจาก Atelier M + A
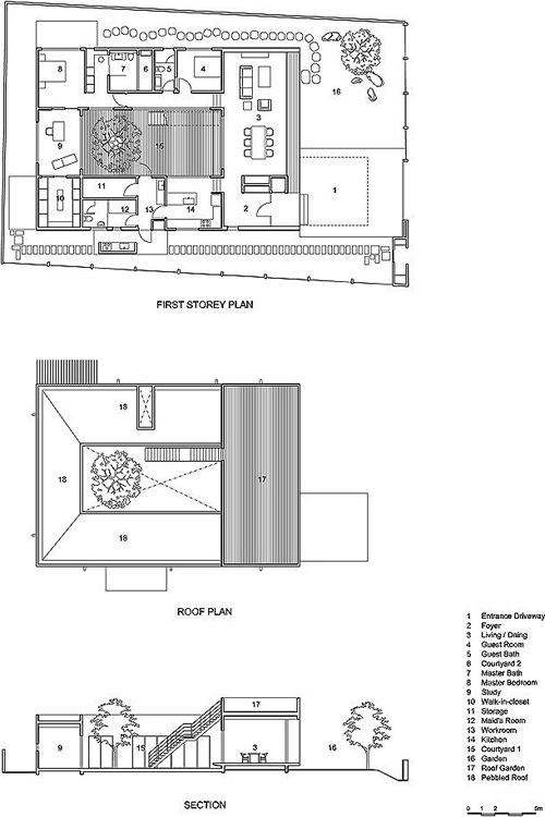
จากการที่อยู่ในแหล่งพักผ่อนธรรมชาติที่เงียบสงบในเมืองเล็ก ๆ ที่เต็มไปด้วยทิวทัศน์อันงดงามตามธรรมชาติ อย่างสวนอ่างเก็บน้ำ เซเลตาร์ ประเทศสิงคโปร์ ทำให้บ้านพักแห่งนี้เป็นแหล่งพักผ่อนในฝันของใครหลาย ๆ คน ซึ่งนับได้ว่าที่พักผ่อนแนวธรรมชาติที่หาได้ยากมากสำหรับประเทศที่เต็มไปด้วยสิ่งก่อสร้างทันสมัยอย่างสิงคโปร์เลยทีเดียว
และนอกจากบ้านพักนี้จะดูร่มรื่นน่าพักผ่อนด้วยทิวทัศน์รอบข้างแล้ว การออกแบบของตัวบ้านที่ดูโปร่งสบายน่าพักผ่อนยังช่วยขับให้บ้านพักตากอากาศหลังนี้ดูดียิ่งขึ้นไปอีก โดยบ้านหลังนี้มีชื่อว่า Mandai Courtyard และเป็นผลงานออกแบบของบริษัท Atelier M + A ซึ่งตอบโจทย์ของเจ้าของบ้านที่อยากได้บ้านชั้นเดียวแต่ดูโปร่งสบายมากที่สุด และมีพื้นที่พอสำหรับของที่จำเป็นได้เป็นอย่างดี ด้วยการสร้างลานไม้ไว้หน้าบ้านไว้เป็นที่เดินเล่นพักผ่อน อีกทั้งยังใช้กระจกใสเข้าช่วยให้แสงและอากาศถ่ายเทได้ดีอีกด้วย
ยิ่งไปกว่านั้นบ้านหลังนี้ยังถูกออกแบบให้ดูทันสมัยสุด ๆ ด้วยการเน้นเฟอร์นิเจอร์สีสันสดใสทันสมัยแบบโมเดิร์นเป็นหลัก ทำให้บ้านนี้ดูเรียบง่ายแต่ก็มีชีวิตชีวา และตอนนี้ถ้าใครอยากเห็นแล้วว่าบ้านหลังนี้จะสวยขนาดไหน ก็ลองไปดูตัวอย่างเพื่อเก็บไว้เป็นแรงบันดาลใจตกแต่งบ้านชั้นเดียวของคุณกันเลยจ้า


.jpg)
.jpg)

.jpg)
.jpg)
.jpg)
.jpg)
_1.jpg)
.jpg)
.jpg)







