
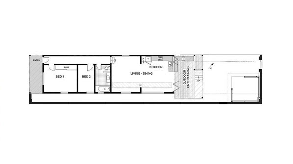
แบบบ้านชั้นเดียว 2 ห้องนอน 1 ห้องน้ำ
ขอขอบคุณข้อมูลและภาพประกอบจาก Danny Broe Architect
แบบบ้านชั้นเดียว 2 ห้องนอน 1 ห้องน้ำ สำหรับครอบครัวเล็ก เป็นแบบบ้านชั้นเดียวที่มีสวนหลังบ้าน และชานบ้านให้นั่งรับลมแบบชิล ๆ
สำหรับครอบครัวเล็ก ๆ ที่กำลังมองหาบ้านสักหลังเอาไว้อยู่กันอย่างเรียบง่าย วันนี้กระปุกดอทคอมขอนำเอาแบบบ้านชั้นเดียว 2 ห้องนอน 1 ห้องน้ำ จาก Danny Broe Architect มาฝากให้ได้ชมเป็นแรงบันดาลใจกันค่ะ โดยมาพร้อมกับพื้นที่ขนาดพอเหมาะพอดีสำหรับครอบครัวขนาดเล็กที่อาศัยอยู่ในเมืองมากทีเดียว
แบบบ้านชั้นเดียว หลังนี้ เริ่มจากต้อนรับสมาชิกในครอบครัวด้วยรั้วไม้สีขาว พื้นที่ว่างรอบบ้านถูกเปลี่ยนเป็นทางเดิน ในขณะที่ด้านหลังล้อมรอบไปด้วยสนามหญ้า ซึ่งในส่วนนี้นี่เองที่มีห้องทำงานซ่อนตัวอยู่ และถึงแม้จะเป็นห้องแยกออกจากตัวบ้าน แต่ก็ยังคงคอนเซ็ปต์การเชื่อมต่อชีวิตกับธรรมเอาไว้ได้เป็นอย่างดี ดังจะเห็นได้จากพื้นห้องทำงานที่่ราบเรียบเกือบเสมอไปกับพื้นสนามหญ้า พร้อมกับบานสไลด์ที่บรรจบกันตรงมุมของห้องพอดี ซึ่งเป็นความแปลกที่ดูสวยงามและช่วยให้บรรยากาศภายในห้องทำงานมีความสบายขึ้น
ส่วนภายในบ้านก็มีกลิ่นอายของธรรมชาติอบอวลอยู่มาก โดยเลือกไม้เนื้อแข็งมาใช้ในการปูพื้นบ้านทั้งหมด พร้อมกันนี้ในส่วนของห้องครัว ซึ่งเป็นห้องสุดท้ายของตัวบ้านก็เชื่อมต่อกับระเบียงบ้านโดยตรง ที่คั่นด้วยประตูบานพับ ดังนั้นก็เลยทำให้บรรยากาศภายในบ้านดูสดชื่น และมีชีวิตชีวา และสว่างไสวในยามที่แสงแดดสาดส่องเข้ามา โดยเฉพาะบริเวณที่ตกแต่งด้วยโทนสีสด ๆ เช่น สีชมพูตรงอ่างล้างจาน สีแดงข้างผนังตู้เก็บของ หรือของตกแต่งสีเขียวอ่อน เป็นต้น
นอกจากนี้ผู้อยู่อาศัยยังสามารถออกมานั่งเล่นชิล ๆ บนระเบียงบ้านได้ทุกฤดู เพราะด้านบนของระเบียงปกคลุมด้วยชายคาที่มีทั้งหลังคาสังกะสีและหลังคาใส ทำให้ได้บรรยากาศดี ๆ แม้ในวันที่มีสายฝนกระหน่ำลงมา หรือวันที่มีแสงแดดแรงก็ตาม อีกทั้งยังมีพื้นที่ว่างเอาไว้ให้เด็ก ๆ ในวัยซนวิ่งเล่นได้อีกด้วย














